реф.12721 ТОП ЛОКАЦИЯ !! МАГАЗИН САНИ ! БЕЗПРОБЛЕМНО ПАРКИРАНЕ ПРЕД БЛОКА !!
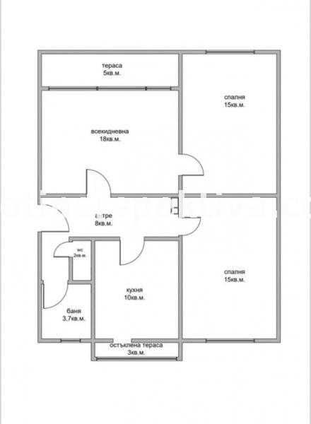
Предлагаме ви слънчев и уютен тристаен апартамент с реална квадратура, в Западната част на града в кв. Смирненски, с отлична локация в непосредствена близост м-н Сани, озеленени паркови пространства и много други удобства. Жилището се състои от кухня с тераса, слънчева и просторна дневна с излаз на втора южна тераса, две спални, баня и отделна тоалетна, широко входно антре и избено помещение -12 кв.м. Разположено на среден етаж, вътрешен апартамент, с изложение – юг/север. Имота се предлага в обзаведен, в добро състояние – нова дограма, блиндирана входна врата, подмемена ВиК инсталация, нови интериорни врати, подови настилки – естествен паркет. Поддържан вход с контролиран достъп. Свободен удобен паркинг пред блока.
Compare listings
Сравняване