оферта №2651
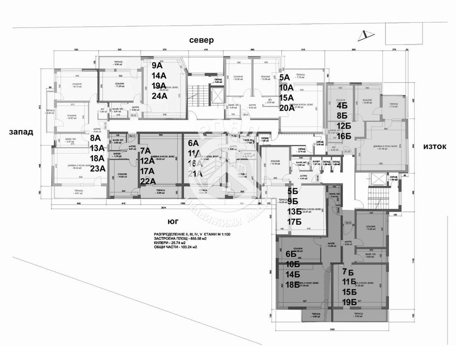
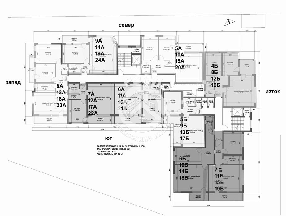
РОЯЛ имоти продава тристаен апартамент в кв. Коматево, гр. Пловдив, разположен във впечатляваща луксозна сграда, чието строителство в момента е в процес на започване. Съчетавайки комфорт, стил и изключително качество на строителство, този апартамент предлага на своите бъдещи собственици уникална възможност за живеене в едно от най-спокойните места в града, както и за инвестиция с цел препродажба или отдаване под наем.
С обща площ от 120 квадратни метра, апартаментът разполага с две просторни спални, идеални за уют и покой. Има баня с тоалетна, както и допълнителна отделна тоалетна за по-голямо удобство на обитателите. Просторният хол е идеално място за събиране с близки и приятели, предоставяйки комфорт и стил в едно. Двете малки тераси позволяват на бъдещите собственици да наслаждават на свеж въздух и красив изглед.
Сградата, в която се намира апартаментът, ще бъде изградена с внимание към детайлите и с използване на висококачествени материали.
Не пропускайте възможността да станете собственик на този елегантен и функционален апартамен!
В сградата има изобилие от 2-стайни и 3-стайни апартаменети идеални за инвестиция и живеене!
Compare listings
Сравняване