Продава се Тристаен апартамент в Пловдив, Кършияка – 121 кв.м за 1536 €/кв.м

  • 185,757€
  • 1,535€/m²
Област Пловдив, гр. Пловдив, Кършияка
  • Апартамент
  • Тип на имота
  • 121
  • кв.м
  • 2024
  • Година на строителство
За продажба Агенция
Област Пловдив, гр. Пловдив, Кършияка
  • 185,757€
  • 1,535€/m²

Накратко за имота

  • Апартамент
  • Тип на имота
  • 121
  • кв.м
  • 2024
  • Година на строителство

Описание

Компания “X” представя на Вашето внимание тристаен апартамент в Кършияка.

МЕСТОПОЛОЖЕНИЕ: В близост до магазини за хранителни стоки, спирка на градски транспорт, основни пътни артерии.

СТРОИТЕЛСТВО: Апартаментът е разположен на непоследен – 8-ми етаж в тухлена сграда.

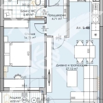
РАЗПРЕДЕЛЕНИЕ: Жилището разполага с площ от 121 кв.м. разпределена в дневна с трапезария, две спални, две бани с тоалетни и две лоджии.

СЪСТОЯНИЕ: Необзаведен.

Заповядайте да Ви го покажем. Използвайки нашите услуги Вие ще превърнете закупуването на новия си дом в едно приятно изживяване, ще получите персонален консултант, съдействие при кандидатстване за кредит от всички банки в България, интериорни дизайнери и екип, който да се погрижи за нужните документи по Вашата сделка. На Ваше разположение сме всеки ден, от понеделник до неделя от 09:00 до 20:00ч. Възползвайте се от безплатна консултация в наш офис, където ще ви спестим време и ще ви запознаем с всички актуални имоти в България, отговарящи на Вашето търсене. Имате възможност да обсъдите покупката чрез кредит с нашите банкови консултанти на място в нашите офиси и да получите най-добрите условия! Свържете се с нас на 08******90 или на 08******90 и цитирайте кода към имота: 441 – 15731

Детайли

Обновено на януари 1, 1970 в 12:00 am
  • Цена: 185,757€
  • Квадратура: 121 кв.м
  • Стаи: 3
  • Година на строителство: 2024
  • Тип на имота: Апартамент
  • Операция: За продажба

Допълнителни детайли

  • Строителство: Тухла
  • Етаж: 8-ми
  • Брой етажи на сградата: 11
  • Отопление: Електричество
  • Обзавеждане: Необзаведен
  • Състояние на сградата: В строеж
  • Преход: Без преход

Особености

  • Град Пловдив
  • Област Област Пловдив
  • Квартал Кършияка
  • Държава България

0 Отзив

Sort by:
Leave a Review

    Leave a Review

    Compare listings

    Сравняване
    Olx Недвижими Имоти
    • Olx Недвижими Имоти