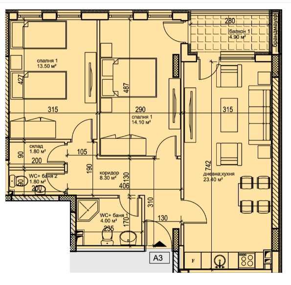
Продава се Тристаен апартамент в Пловдив, Кършияка – 99 кв.м за 1312 €/кв.м

  • 129,800€
  • 1,311€/m²
Област Пловдив, гр. Пловдив, Кършияка
  • Апартамент
  • Тип на имота
  • 99
  • кв.м
  • 2025
  • Година на строителство
За продажба Агенция
Област Пловдив, гр. Пловдив, Кършияка
  • 129,800€
  • 1,311€/m²

Накратко за имота

  • Апартамент
  • Тип на имота
  • 99
  • кв.м
  • 2025
  • Година на строителство

Описание

При интерес за това и още много други предложения, не се колебайте да се обадите на посочения номер!

Детайли

Обновено на януари 1, 1970 в 12:00 am
  • Цена: 129,800€
  • Квадратура: 99 кв.м
  • Стаи: 3
  • Година на строителство: 2025
  • Тип на имота: Апартамент
  • Операция: За продажба

Допълнителни детайли

  • Строителство: Тухла
  • Етаж: 2-ри
  • Брой етажи на сградата: 5
  • Отопление: Електричество
  • Обзавеждане: Необзаведен
  • Състояние на сградата: В строеж
  • Преход: С преход
  • Град Пловдив
  • Област Област Пловдив
  • Квартал Кършияка
  • Държава България

0 Отзив

Sort by:
Leave a Review

    Leave a Review

    Compare listings

    Сравняване
    Olx Недвижими Имоти
    • Olx Недвижими Имоти