Компания X представя на Вашето внимание двустаен апартамент в кв.Кючук Париж.
МЕСТОПОЛОЖЕНИЕ:Кварталът се намира в централната част на града и е известен със своите стари реновирани къщи, улежани улици и атмосфера, която отразява богатата история на града. Той привлича туристи и местни жители с множество кафенета, ресторанти, галерии и малки магазини.
СТРОИТЕЛСТВО: Апартаментът се намира на 7 етаж , тухла.
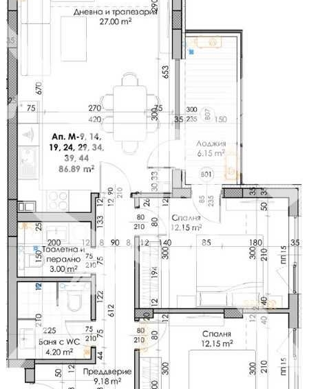
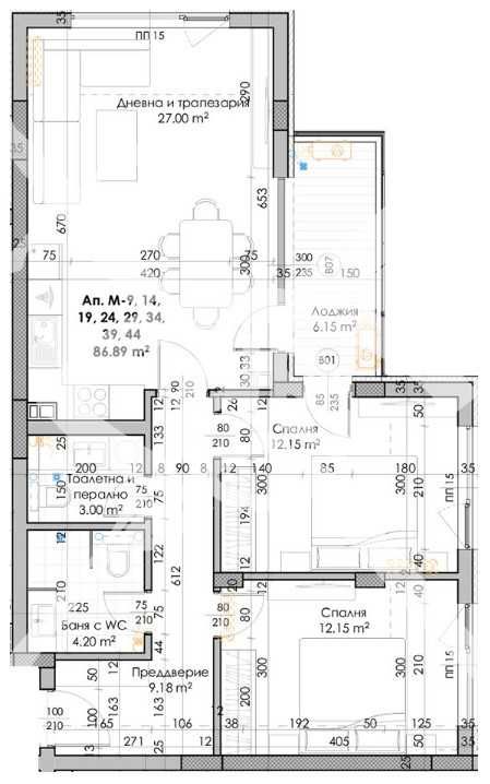
РАЗПРЕДЕЛЕНИЕ: Жилището разполага с площ от 102 кв.м. дневна с трапезария и кухненски бокс, две спални, баня с тоалетна, тоалетнас с перално, лоджия.
СЪСТОЯНИЕ: В строеж.
Заповядайте да Ви го покажем. Използвайки нашите услуги Вие ще превърнете закупуването на новия си дом в едно приятно изживяване, ще получите персонален консултант, съдействие при кандидатстване за кредит от всички банки в България, интериорни дизайнери и екип, който да се погрижи за нужните документи по Вашата сделка. На Ваше разположение сме всеки ден, от понеделник до неделя от 09:00 до 20:00ч. Възползвайте се от безплатна консултация в наш офис, където ще ви спестим време и ще ви запознаем с всички актуални имоти в България, отговарящи на Вашето търсене. Свържете се с нас на 08******90 /на цената на един градски разговор/ или на 08******90 и цитирайте кода към имота:107-7411
Compare listings
Сравняване