ОФЕРТА 5989 Предлагаме за продажба светъл и просторен тристаен апартамент в новострояща се бутикова сграда с едва 10 апартамента, разположена в една от най-предпочитаните зони на Пловдив – Младежки хълм, в непосредствена близост до Мол Пловдив. Имотът е отличен избор както за семеен дом, така и за инвестиция с висок потенциал за отдаване под наем.
Основни параметри:
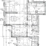
– Тип имот: тристаен (дневна с кухненски бокс + 2 спални)
– Общa площ: 116.06 кв.м
– Балкони: 2
– Баня с тоалетна: 1
– Асансьор: да
– Сграда: бутикова, само 10 апартамента
– Строителство: ново
– Етапи: Акт 14 до края на 2026 г.; Акт 16 до края на 2027 г.
Разпределение:
– Входно антре
– Просторна дневна с кухненски бокс и място за трапезария
– Две самостоятелни спални
– Баня с тоалетна
– Две удобни тераси с достъп от дневната и/или спалните (според конкретния апартамент)
Локация и предимства:
– Топ локация: до Мол Пловдив и парк Младежки хълм
– Тиха и поддържана улица с бърз достъп до центъра
– Развита инфраструктура, транспорт, магазини и услуги на пешеходно разстояние
– Малка, бутикова сграда – повече комфорт и спокойствие
Идеален имот за ценители на качественото ново строителство в престижен район. За повече информация, план на апартамента и оглед, свържете се с нас. Резервирайте навреме в предпочитаната сграда с ограничен брой жилища!
Compare listings
Сравняване