Компания X представя на Вашето внимание тристаен апартамент в кв. Остромила .
МЕСТОПОЛОЖЕНИЕ: В близост до магазини за хранителни стоки, спирка на градски транспорт, основни пътни артерии.
СТРОИТЕЛСТВО: Апартаментът се намира на 1 етаж в тухлена сграда.
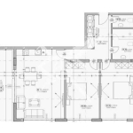
РАЗПРЕДЕЛЕНИЕ: Жилището разполага с площ от 116 кв.м. разпределена в коридор , холс кухня и трапезария , две хубави спални , от които се излиза на западна тераса , като апартамента разполага и с втора голяма южна и просторна тераса , на която се излиза от хола , баня и тоалетна отделно ,към апартамент има и изба от около 4-5 кв м.
СЪСТОЯНИЕ: Напълно обзаведен и разполагащ с най-висок клас електроуреди.
Заповядайте да Ви го покажем. Използвайки нашите услуги Вие ще превърнете закупуването на новия си дом в едно приятно изживяване, ще получите персонален консултант, съдействие при кандидатстване за кредит от всички банки в България, интериорни дизайнери и екип, който да се погрижи за нужните документи по Вашата сделка. На Ваше разположение сме всеки ден, от понеделник до неделя от 09:00 до 20:00ч. Възползвайте се от безплатна консултация в наш офис, където ще ви спестим време и ще ви запознаем с всички актуални имоти в България, отговарящи на Вашето търсене. Свържете се с нас на 08******90 или на 08******90 и цитирайте кода към имота: 52184
Compare listings
Сравняване