Компания ‘X’ представя на Вашето внимание тристаен апартамент в кв.Остромила.
МЕСТОПОЛОЖЕНИЕ: Кварталът е известен със своите спокойни улици, обширни паркове и зелени площи, които правят мястото подходящо за спокойни разходки и отдих. Остромила е също така популярен сред семействата заради приятната му обстановка и близостта до училища, детски градини и други удобства.
СТРОИТЕЛСТВО: Апартаментът е разположен на 6-ти етаж в тухлена сграда.
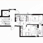
РАЗПРЕДЕЛЕНИЕ:Коридор, дневна с кухненска част, две спални,баня с тоалетна,тоалетна, тераса с излаз към дневната,склад.
Заповядайте да Ви го покажем. Използвайки нашите услуги Вие ще превърнете закупуването на новия си дом в едно приятно изживяване, ще получите персонален консултант, съдействие при кандидатстване за кредит от всички банки в България, интериорни дизайнери и екип, който да се погрижи за нужните документи по Вашата сделка. На Ваше разположение сме всеки ден, от понеделник до неделя от 09:00 до 20:00ч. Възползвайте се от безплатна консултация в наш офис, където ще ви спестим време и ще ви запознаем с всички актуални имоти в България, отговарящи на Вашето търсене. Свържете се с нас нужен Вие само кодът на имотът:732-22510
Compare listings
Сравняване