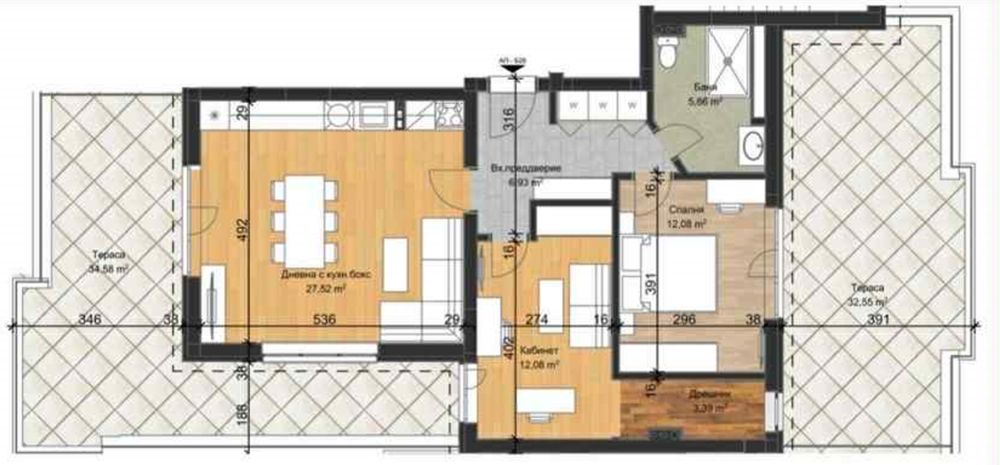
Оферта 32908 – Тристаен апартамент в Остромила Качествено строителство от доказан инвеститор
Предлагаме просторен тристаен апартамент в тих и предпочитан район – Остромила, в сграда с висококачествено строителство от утвърден инвеститор.
Характеристики:
– Площ: 165 кв.м
– Етаж: 4
– Тип: Ново строителство
– Статус: Акт 14 – януарифевруари 2026 г.
– Акт 16: началото на 2027 г.
Цена: 198 960
Compare listings
Сравняване