Premium Properties, отличена на национален конкурс като най-добра дебютна агенция в България за 2021-2023 година има удоволствието да ви представи тристаен апартамент с АКТ 14 в квартал Остромила.
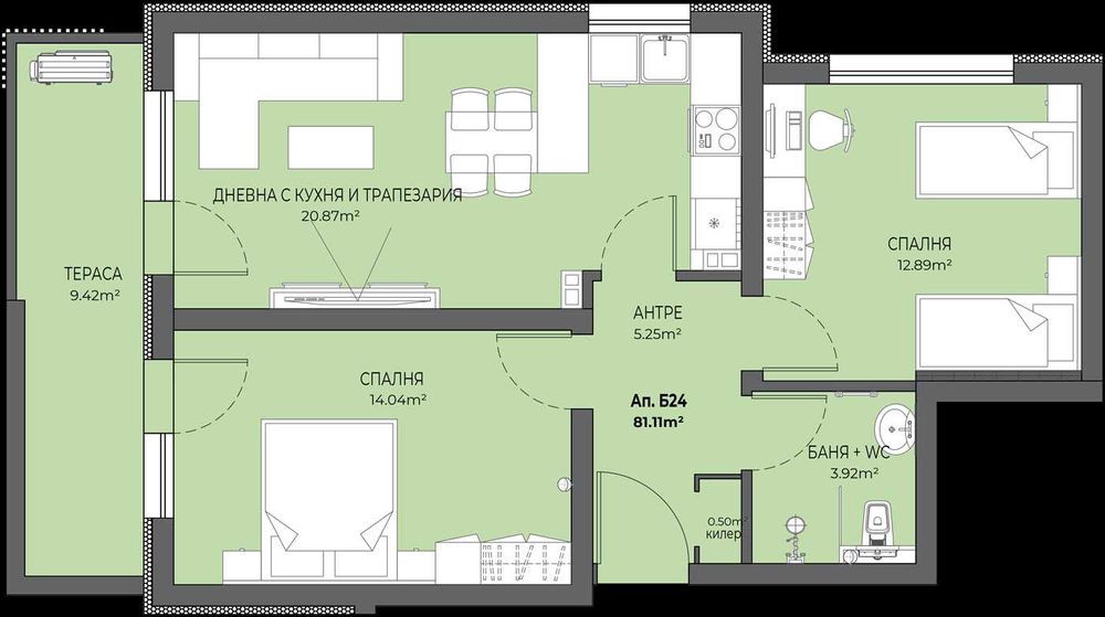
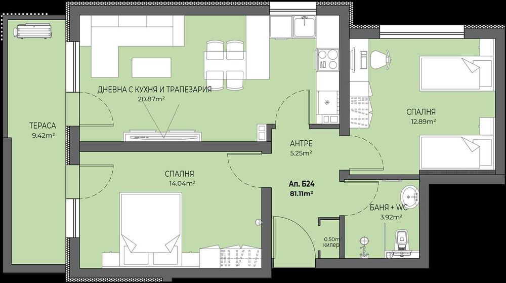
Разпределение: входно антре, дневна с кухня и трапезария, две спални, баня и wc, килер, тераса
Локацията му е практична и подходяща за всеки, който иска да избяга от шума и динамиката на големия град. В непосредствена близост до жилищната сграда се намират автобусни спирки, хранителни магазини, училища, колежи и бензиностанции. Само на 5 минути от комплекса се намира голям Retail Park, в който има Lidl, Kaufland, Jysk и др.
Парцелът разполага с 2 секции, с по 4 етажа всяка. Общо апартаментите са 40 на брой. Спокойствието и тишината правят комплекса перфектното място за живеене.
За най-малките жители на комплекса, както и за удобството на техните родители, е обособена цветна детска площадка. Предвиденото озеленяване е под формата на тревиста растителност с разнообразни растителни видове.
В реализацията на проекта са заложени материали от най-висок клас и иновативни решения, отговарящи на изискванията и предпочитанията на модерното жилищно строителство.
Паркинг: Паркиране посредством 29 наземни паркоместа, като 2 от тях са инвалидни и 14 гаража.
Номер на обява: 40405
Покупката на жилище е изключително важен момент от живота на всеки човек и за това искаме да предложим най- доброто.
За да се отличим от всички останали на пазара, ние се стремим да предложим най-добрата услуга, свързана с недвижимото имущество.
Точно заради това ние предлагаме допълнителен набор от услуги, за да сме конкурентно способни и да можем да предложим всичко за вашия недвижим имот.
Ето и услугите:
•Търсене на имот по зададени критерии.
•Огледи на имоти с наш брокер.
•Продажби на готови или новостроящи се имоти.
•Дългосрочни и кратокосрочни наеми.
•Оценки и консултации.
•Юридически услуги.
•Архитектурни проекти.
•Интериорни проекти и решения.
•Мениджмънт на строителни обекти.
•Строителство, ремонти и обзавеждане.
•Управление и стопанисване на имоти
•Съдействие за кредити и ипотеки.
•Агенцията работи и през почивните дни.
При интерес към този или друг имот се свържете с нас за повече информация, безплатна консултация или уговорка за оглед.
Compare listings
Сравняване