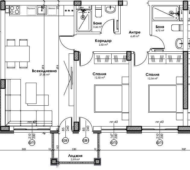
Титан Пропъртис има удоволствието да Ви представи тристаен апартамент в малка бутикова сграда в кв. Прослав в начален етап на строеж, разположена в близост до основни пътни артерии, магазини, детска градина, училище и паркове.
Апартаментът е ситуиран на 2-ви от 5-ти жилищен етаж и разполага с площ от 93 кв.м., разгърната по следния практичен начин: входно антре, всекидневна, две спални, две бани с тоалетни, лоджия. Има възможност за закупуване паркомясто на стойност 8 000 евро.
За оглед на това и други атрактивни предложения, не се колебайте да ни потърсите на посочения телефон или да ни изпратите данните си чрез формата за запитване на сайта.
Референтен номер: 1202
Compare listings
Сравняване