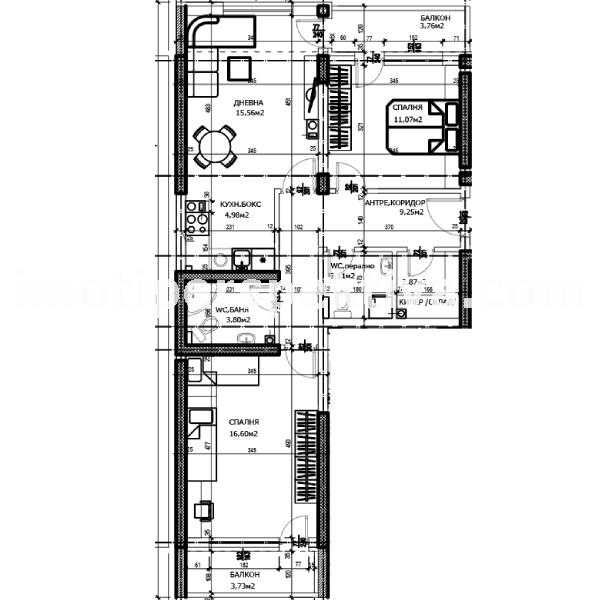
реф.9938 ТОП ЦЕНА !!! Предлагаме Ви ТРИСТАЕН апартамент в нова сграда! Състои се от СВЕТЪЛ и ПРОСТОРЕН хол с кухненски бокс, ДВЕ УЮТНИ спални, ДВЕ бани с тоалетни, ДВЕ ТЕРАСИ, коридор и прилежащ килер. Имотът който ви предлагаме да закупите е на шпакловка и замазка което дава страхотната възможност на новите собственици да го обзаведат по собствен вкус и стил. В близост са разположени детски градини,училища,хранителни магазини,удобен градски транспорт до всяка една точка на града и др. Свободни гаражи в сградата !
Compare listings
Сравняване