Реф. номер: 2612
АКТ 14! ДВОЕН ГАРАЖ! ОЧАКВАН АКТ 16 ПРЕЗ ПРОЛЕТТА НА 2026г.! ИЗЛОЖЕНИЕ ЮГОИЗТОК – ЮГОЗАПАД!
Предлагаме ви тристаен апартамент с гараж в новопостроена луксозна сграда с Акт 14 в кв. Тракия!
Основни характеристики на имота:
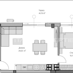
– Площ: 116 кв.м
– Разпределение: Просторен хол с кухненски бокс, две спални, две бани с тоалетни, антре, склад и две тераси
– Вид строителство: Тухла (с Акт 14, очакван Акт 16 пролетта на 2026г.)
– Изложение: Югоизток, Югозапад
– Паркиране: Двоен гараж включен в цената
– Етажност: 4 ет. от 10 ет. (асансьор)
Апартаментът е ситуиран в нов луксозен комплекс в кв. Тракия! Ще бъде завършен до степен: Шпакловка и замазка, ВиК до тапа, цялостно окабеляване и поставена входна врата, което ви дава възможността да го обзаведете и направите по ваш собствен вкус!
За повече информация и организиране на огледи, моля, свържете се с нас на посочения номер, като ще Ви е необходим следният референтен номер: 2612
Лайт Хоум имоти е доверен партньор на най-големите банкови институции в страната и съдейства за преференциални условия при нужда от кредитиране. Ще получите юридическо съдействие през целия процес на сделката, както и съдействие при подготовка, подаване и получаване на всички необходими документи за сделката.
Compare listings
Сравняване