Компания за недвижими имоти ”Deluxe Homes” има удоволствието да ви представи тристаен апартамент в един от предпочитаните райони на гр. Пловдив – кв. Тракия.
• Основни характеристики:
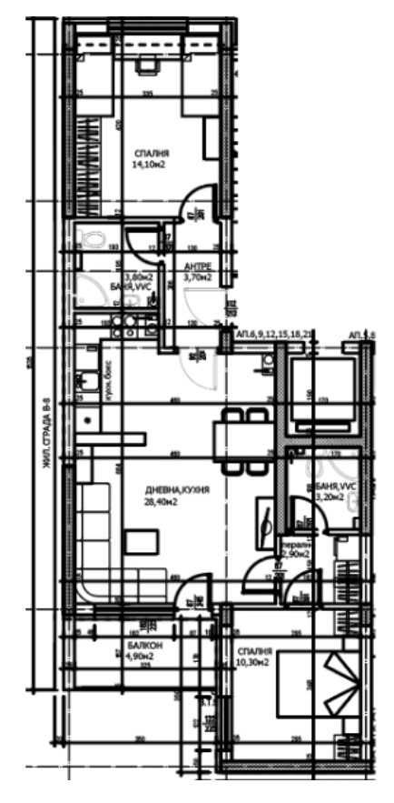
Разпределението включва: Входно антре, дневна + кухненски бокс и трапезария, две спални, баня + тоалетна, тоалетна и балкон
Местоположение: Намира се в близост до Ритейл Парк, Спортен комплекс „Академик“, Колодрум, Happy Bar & Grill Landmark, Билла, West Gym и много други.
Доставяме резултатите, които сме обещали. Създаваме очаквания на клиентите си, които можем да посрещнем.
Инвестираме доверие, както в екипа си, така и в клиентите си.
”Deluxe Homes” предлага:
• Посредничество при покупка и продажба на недвижим имот.
• Сътрудничество за всякакъв вид кредитиране.
• Управление на имоти.
• Юридическо съдействие.
• Следпродажбени услуги.
• Безплатна консултация в наш офис.
Не пропускайте възможността да разгледате този имот! Свържете се с нас за допълнителна информация и уговаряне на огледи!
КОД НА ОБЯВАТА: 140034
Compare listings
Сравняване