Компания за недвижими имоти Deluxe Homes има удоволствието да ви представи тристаен апартамент в един от предпочитаните райони на гр. Пловдив – кв. Тракия.
Основни характеристики:
Сградата е пред АКТ 16!
• Разпределението включва:
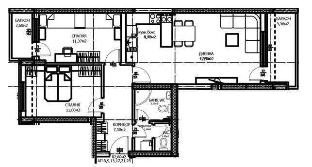
– Входно антре, дневна + кухненски бокс и трапезария, две спални, баня + тоалетна, мокро помещение, два балкона
Местоположение:
– Намира се в близост до Ритейл Парк, Спортен комплекс „Академик“, Колодрум, Happy Bar & Grill Landmark, Билла, West Gym и много други.
Не пропускайте възможността да разгледате този имот! Свържете се с нас за допълнителна информация и уговаряне на огледи!
За нашите клиенти съдействаме БЕЗПЛАТНО за всякакъв вид кредитиране.
Код на обявата: 135237
Compare listings
Сравняване