Продава се Тристаен апартамент в Шумен, Боян Българанов 1 – 93 кв.м за 1207 €/кв.м

  • 112,200€
  • 1,206€/m²
Област Шумен, гр. Шумен, Боян Българанов 1
Продава се Тристаен апартамент в Шумен, Боян Българанов 1 - 93 кв.м за 1207 €/кв.м - Снимка #4 Продава се Тристаен апартамент в Шумен, Боян Българанов 1 - 93 кв.м за 1207 €/кв.м - Снимка #5 Продава се Тристаен апартамент в Шумен, Боян Българанов 1 - 93 кв.м за 1207 €/кв.м - Снимка #6
  • Апартамент
  • Тип на имота
  • 93
  • кв.м
  • 2025
  • Година на строителство
За продажба Агенция
Област Шумен, гр. Шумен, Боян Българанов 1
  • 112,200€
  • 1,206€/m²

Накратко за имота

  • Апартамент
  • Тип на имота
  • 93
  • кв.м
  • 2025
  • Година на строителство

Описание

Обява С5 57: Продава се Тристаен тухлен апартамент, ново строителство на БДС В гр.Шумен, кв.Тракия

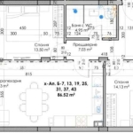
Площ 93 м2

Етаж 5-непоследен с асансьор

Разпределение: коридор, просторен хол с кухня, две спални, тераса, баня с тоалет, мазе

Цена 220 000 лв.

Детайли

Обновено на януари 1, 1970 в 12:00 am
  • Цена: 112,200€
  • Квадратура: 93 кв.м
  • Стаи: 3
  • Година на строителство: 2025
  • Тип на имота: Апартамент
  • Операция: За продажба

Допълнителни детайли

  • Строителство: Тухла
  • Етаж: 5-ти
  • Брой етажи на сградата: 6
  • Отопление: Електричество
  • Обзавеждане: Необзаведен
  • Състояние на сградата: Завършена
  • Преход: Без преход

Особености

  • Град Шумен
  • Област Област Шумен
  • Квартал Боян Българанов 1
  • Държава България

0 Отзив

Sort by:
Leave a Review

    Leave a Review

    Compare listings

    Сравняване
    Olx Недвижими Имоти
    • Olx Недвижими Имоти