Продава се Тристаен апартамент в София, Банишора – 82 кв.м за 2635 €/кв.м

  • 216,000€
  • 2,634€/m²
Област София-град, гр. София, Банишора
  • Апартамент
  • Тип на имота
  • 82
  • кв.м
  • 2025
  • Година на строителство
За продажба Агенция
Област София-град, гр. София, Банишора
  • 216,000€
  • 2,634€/m²

Накратко за имота

  • Апартамент
  • Тип на имота
  • 82
  • кв.м
  • 2025
  • Година на строителство

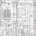
Описание

Представям тристаен апартамент в нова сграда за страхотна инвестиция или нов дом за самите вас. При интерес позвънете на посочения телефон за получаване на допълнителна информация.

1051-30389

Детайли

Обновено на януари 1, 1970 в 12:00 am
  • Цена: 216,000€
  • Квадратура: 82 кв.м
  • Стаи: 3
  • Година на строителство: 2025
  • Тип на имота: Апартамент
  • Операция: За продажба

Допълнителни детайли

  • Строителство: Тухла
  • Етаж: 2-ри
  • Брой етажи на сградата: 6
  • Отопление: Електричество
  • Обзавеждане: Необзаведен
  • Състояние на сградата: Завършена
  • Преход: Без преход
  • Град София
  • Област Област София-град
  • Квартал Банишора
  • Държава България

0 Отзив

Sort by:
Leave a Review

    Leave a Review

    Compare listings

    Сравняване
    Olx Недвижими Имоти
    • Olx Недвижими Имоти