Компания `ЕКС` представя на Вашето внимание тристаен апартамент в центъра на гр. София с подземно паркомясто включено в цената.
МЕСТОПОЛОЖЕНИЕ: В близост до метростанция, спирка на градски транспорт, магазини от всякакъв тип.
СТРОИТЕЛСТВО: Имотът е ситуиран на 2-ри етаж в нова тухлена сграда с очакван АКТ 16 през юни месец на 2024 г.
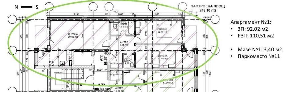
РАЗПРЕДЕЛЕНИЕ: Апартаментът разполага с площ от 110 кв.м. разпределена във входно антре, дневна с трапезария и кухненски бокс, две спални помещения, две бани с тоалетна, две тераси, мазе от 3,40 кв.м.
СЪСТОЯНИЕ: На шпакловка и замазка.
Заповядайте да Ви го покажем. Използвайки нашите услуги Вие ще превърнете закупуването на новия си дом в едно приятно изживяване, ще получите персонален консултант, съдействие при кандидатстване за кредит от всички банки в България, интериорни дизайнери и екип, който да се погрижи за нужните документи по Вашата сделка. На Ваше разположение сме всеки ден, от понеделник до неделя от 09:00 до 20:00ч. Възползвайте се от безплатна консултация в наш офис, където ще ви спестим време и ще ви запознаем с всички актуални имоти в България, отговарящи на Вашето търсене. Свържете се с нас на 08*********90 или на 08*********57 и цитирайте кода към имота: 58077.
Compare listings
Сравняване