ПРОМОЦИОНАЛНА СХЕМА НА ПЛАЩАНЕ: 20% на предварителен договор и 80% на акт 16! ЕРА Голд Ви представя тристаен апартамент в новостроящ се мащабен затворен комплекс в ‘ирокия център на град София, до парк “Възраждане”.
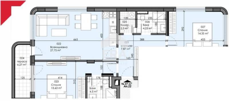
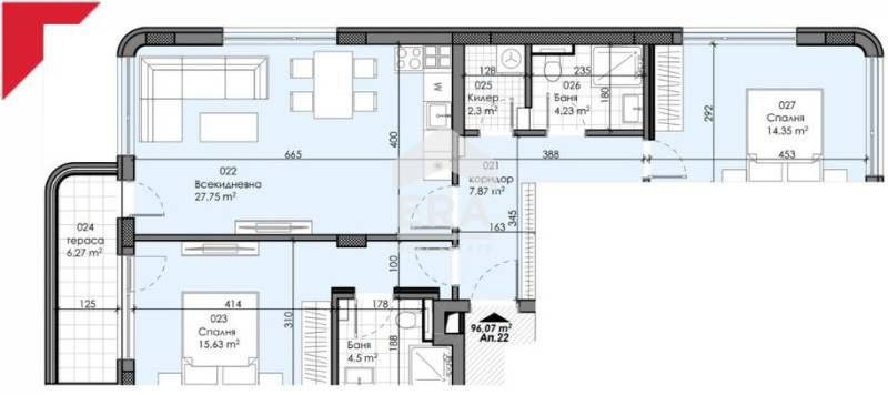
Апартаментът се състои от входно антре, дневна с кухня и трапезария, 2 спални, две бани, едната от която с тоалетна, килер и тераса. Отопление: Климатици.
Площ: 113.25 кв.м.
Застроена площ: 95.95 кв.м.
Етаж: 5/12
Разполагаме със разнообразие от апартаменти с една, две, три и четири спални.
Разположен на тиха, зелена улица на пешеходно разстояние от:
Парк Възраждане и Аквапарк, Спортна София, Руски паметник, МОЛ София, Метростанция „Константин Величков“, Метростанция „Опълченска“, Транспортна обезпеченост – автобуси, трамвай, Пирогов, Медицинска академия, Детски градини и училища, Супермаркети (Билла, Лидл, Кауфланд и др.)
За проекта:
12 сгради с различна етажност /до 17 етаж/, 881 апартамента, с 1, 2, 3 и 4 спални, 9 магазина, Ресторант – градина, 982 паркоместа и гаражи, Детска площадка, Апартаменти със собствен, озеленен двор, Пентхауси – с просторни тераси и прекрасна гледка, Управление и поддръжка 24/7 с фирма, контролирана от инвеститора.
Предимства на сградите:
Висококачествено строителство, Енергоефективност – подово отопление с индивидуална термопомпа или заготовка за климатик, Вентилируема фасада с минерална вата, Алуминиева дограма с троен стъклопакет, Озеленен, пешеходен вътрешен двор.
ЕРА Кредит предоставя безплатна консултация и съдействие при финансиране на избрания от Вас имот от всички водещи банки в страната и ще договори най добрите условия за вас!
Оферта №4061524
Compare listings
Сравняване