С ВЪЗМОЖНОСТ ЗА ДОПЪЛНИТЕЛНО ЗАКУПУВАНЕ НА ПОДЗЕМНИ ПАРКОМЕСТА!
Агенция за недвижими имоти Калиста Естейт има огромното удоволствие да Ви представи тристаен апартамент* в ж.к. Дружба 1.
Обзавеждане: шпакловка и замазка
Етап на строителство: в строеж
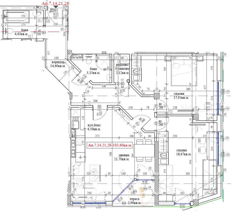
Разпределение: входно антре, кухненски бокс с хол и трапезария, две спални, две бани с тоалетна, перално помещение и тераса
Квадратура: РЗП: 112кв.м; ЗП: 104кв.м.
Етажност: 4 от 5
Асансьор: да
Отопление : електричество
Предимства на имота: светъл и просторен на комуникативна локация. Намира се в непосредствена близост до парк, метростанция, заведения, хранителни магазини, училище, детска градина и търговски обекти. Апартаментът е подходящ за тези от Вас, които търсят своя нов дом мечта или за онези, които търсят перфектната инвестиционна възможност.
РЕФ.НОМЕР: 1006-9774
*В сградата разполагаме с голям брой свободни апартаменти с различни квадратури, разпределения и етажност.
При проявен интерес към тази оферта или ако желаете БЕЗПЛАТНА консултация, може да се свържете с нас на посочения телефон.
Compare listings
Сравняване