Компания Х представя на Вашето внимание Тристаен в Тифани на град Бургас.
МЕСТОПОЛОЖЕНИЕ: Разположен е до мол Плаза и Морската градина, най-желаните локации за живот и инвестиции. Близостта до Морската градина, културните забележителности и ключовите транспортни връзки прави всяка собственост тук не просто дом, а стратегически избор с висока стойност.
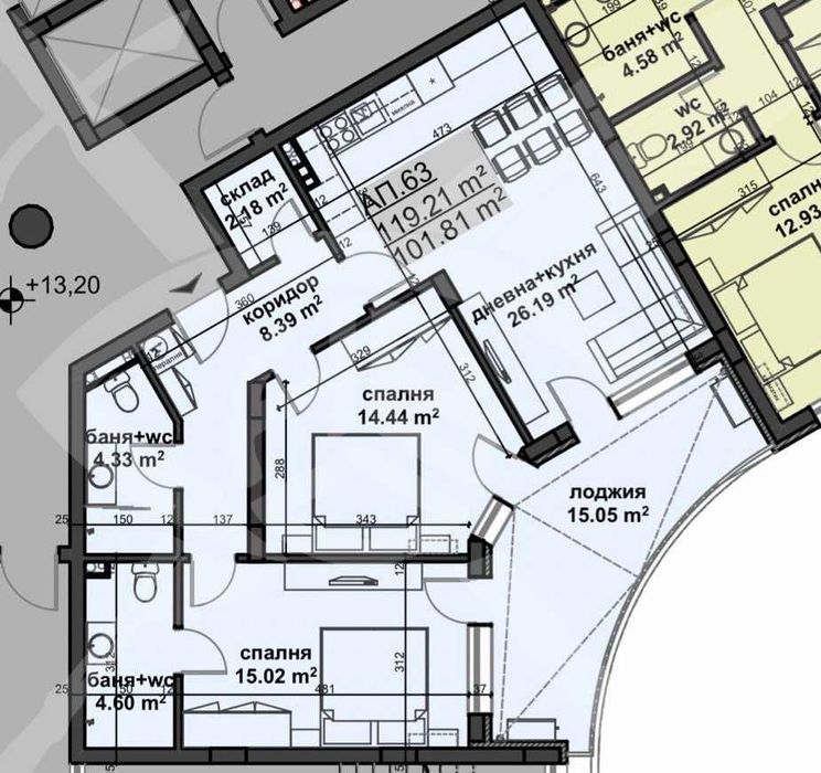
РАЗПРЕДЕЛЕНИЕ: Жилището разполага с площ от 119,21кв.м., разпределена в следното функционално разпределение: Просторно антре с потенциял за индивидуален подчерк на бъдещите собственици, огромен кухненски бокс с хол, спалня със самостоятелна баня с тоалетна, която позволява да бъде преустроена в комфортен дрешник и малка баня с тоалетна, основна баня с тоалетна, тераса с квадратура на огромна веранда, и склад за всичко онова което искате да складирате извън уюта и комфорта създаден от вас.
СЪСТОЯНИЕ: За удобство и комфорта на новите собственици имота можете да си го обзавдете по свой избор.
ОСОБЕНОСТИ: Имотът е подходящ за отлична инвестиция с висок потенциал за доходност., така и за лично ползване и паралелно отдаване под наем. Към имота има и подземно паркомясто с кв.27.5 кв.м. на цена от 27 000 евро. Сградата очаква всеки момент акт 16.
Заповядайте да Ви го покажем. Използвайки нашите услуги Вие ще превърнете закупуването на новия си дом в едно приятно изживяване, ще получите персонален консултант, съдействие при кандидатстване за кредит от всички банки в България, интериорни дизайнери и екип, който да се погрижи за нужните документи по Вашата сделка. На Ваше разположение сме всеки ден, от понеделник до неделя от 09:00 до 20:00ч. Възползвайте се от безплатна консултация в наш офис, където ще ви спестим време и ще ви запознаем с всички актуални имоти в България, отговарящи на Вашето търсене. Свържете се с нас и цитирайте кода към имота: 11111
Compare listings
Сравняване