Продава се Тристаен апартамент в София, Кръстова вада – 125 кв.м за 2412 €/кв.м

  • 301,460€
  • 2,412€/m²
Област София-град, гр. София, Кръстова вада
Продава се Тристаен апартамент в София, Кръстова вада - 125 кв.м за 2412 €/кв.м - Снимка #4
  • Апартамент
  • Тип на имота
  • 125
  • кв.м
  • 2024
  • Година на строителство
За продажба Агенция
Област София-град, гр. София, Кръстова вада
  • 301,460€
  • 2,412€/m²

Накратко за имота

  • Апартамент
  • Тип на имота
  • 125
  • кв.м
  • 2024
  • Година на строителство

Описание

Компания `ЕКС` представя на Вашето внимание тристаен апартамент в един от най-предпочитаните райони на София- жк Кръстова вада.

МЕСТОПОЛОЖЕНИЕ: В близост до спирка на градски транспорт, магазини от всякакъв тип.

СТРОИТЕЛСТВО: Апартаментът е ситуиран на 4-ти етаж в нова тухлена сграда от 2024 г.

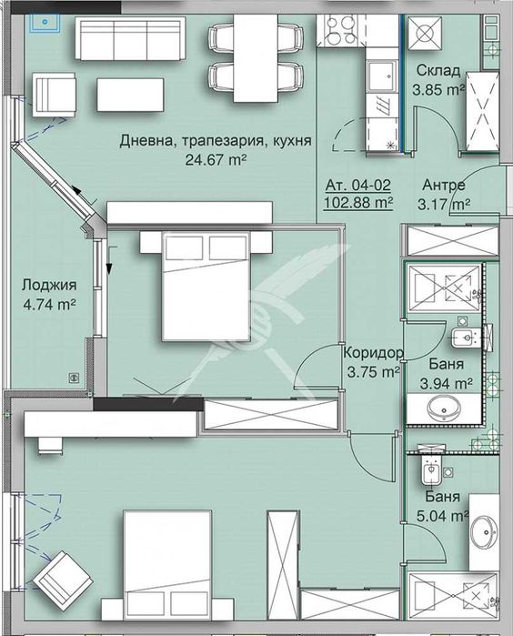
РАЗПРЕДЕЛЕНИЕ: Жилището разполага с площ от 125 кв.м., разпределена във входно антре, дневна с трапезария и кухненски бокс, две спални помещения, две бани с тоалетна, гардеробно помещение, мокро помещение, тераса с гледка към планина Витоша.

СЪСТОЯНИЕ: На шпакловка и замазка.

Заповядайте да Ви го покажем. Използвайки нашите услуги Вие ще превърнете закупуването на новия си дом в едно приятно изживяване, ще получите персонален консултант, съдействие при кандидатстване за кредит от всички банки в България, интериорни дизайнери и екип, който да се погрижи за нужните документи по Вашата сделка. На Ваше разположение сме всеки ден, от понеделник до неделя от 09:00 до 20:00ч. Възползвайте се от безплатна консултация в наш офис, където ще ви спестим време и ще ви запознаем с всички актуални имоти в България, отговарящи на Вашето търсене. Свържете се с нас на 08*********90 или на 08*********57 и цитирайте кода към имота: 572-19021.

Детайли

Обновено на януари 1, 1970 в 12:00 am
  • Цена: 301,460€
  • Квадратура: 125 кв.м
  • Стаи: 3
  • Година на строителство: 2024
  • Тип на имота: Апартамент
  • Операция: За продажба

Допълнителни детайли

  • Строителство: Тухла
  • Етаж: 4-ти
  • Брой етажи на сградата: 15
  • Отопление: Термопомпа
  • Обзавеждане: Необзаведен
  • Състояние на сградата: Завършена
  • Преход: Без преход
  • Град София
  • Област Област София-град
  • Квартал Кръстова вада
  • Държава България

0 Отзив

Sort by:
Leave a Review

    Leave a Review

    Compare listings

    Сравняване
    Olx Недвижими Имоти
    • Olx Недвижими Имоти