Продава се Тристаен апартамент в София, Люлин 5 – 112 кв.м за 1418 €/кв.м

  • 158,800€
  • 1,418€/m²
Област София-град, гр. София, Люлин 5
  • Апартамент
  • Тип на имота
  • 112
  • кв.м
  • 2025
  • Година на строителство
За продажба Агенция
Област София-град, гр. София, Люлин 5
  • 158,800€
  • 1,418€/m²

Накратко за имота

  • Апартамент
  • Тип на имота
  • 112
  • кв.м
  • 2025
  • Година на строителство

Описание

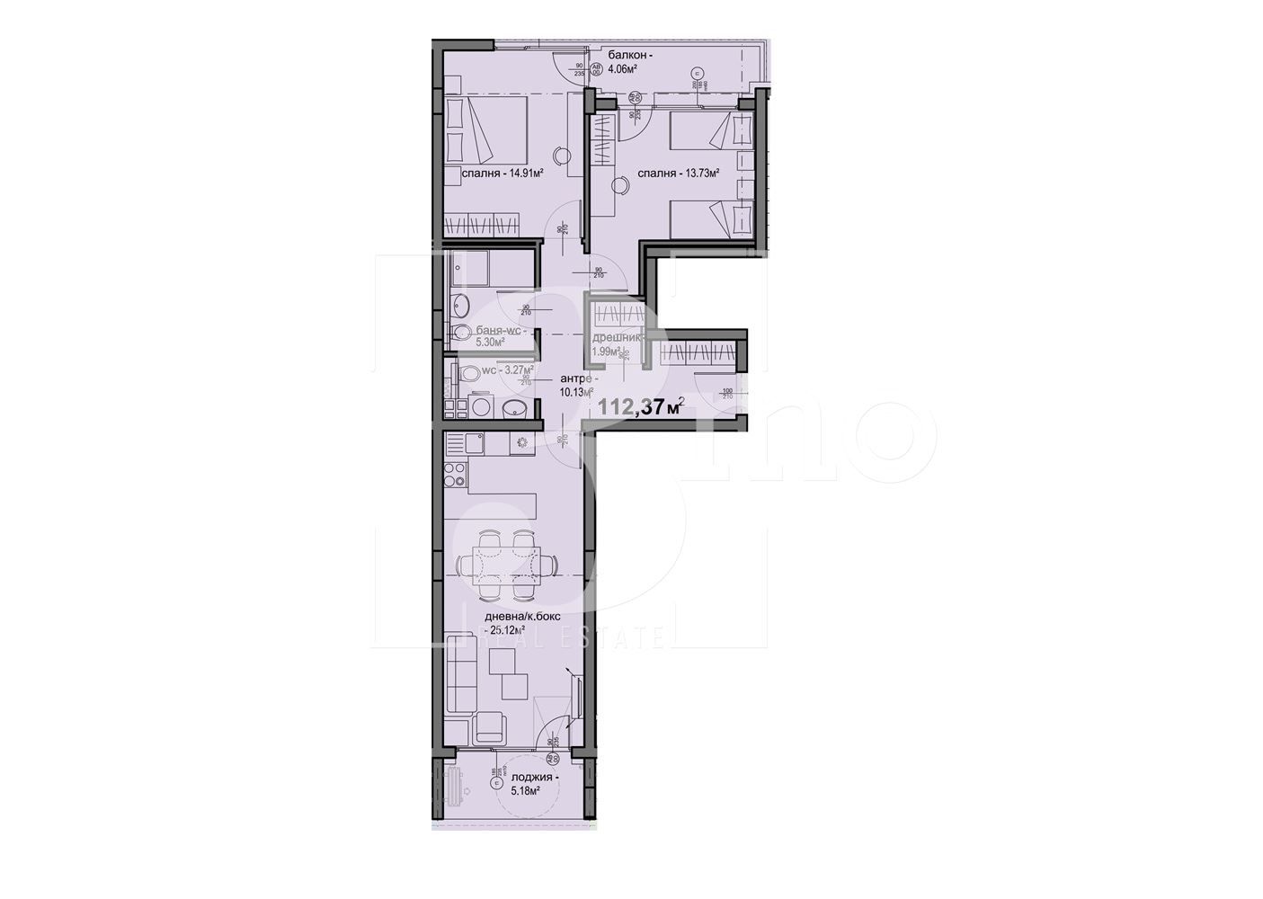
3mo Амалтея има удоволствието да ви предложи тристаен апартамент в нова модерна жилищна сграда с планирано разрешение за ползване в края на 2026-та година. Намира се в ж.к. Люлин 5 на комуникативно място. Предложеният имот е с обща площ от 112,37 кв.м. (застроена 100 кв.м.) и се състои от: входно антре (10,13 кв.м.), всекидневна с кухненски бокс и трапезария (25,12 кв.м.) с лоджия (5,18 кв.м.), спалня (14,91 кв.м.), втора спалня (13,73 кв.м.), балкон (4,06 кв.м.), дрешник/складово помещение (1,99 кв.м.), баня с тоалетна (5,30 кв.м.) и отделна тоалетна (3,27 кв.м). Жилището е разположено на четвърти от общо девет етажа с изложение изток и запад. Отоплението е чрез газ. Към имота може да се закупи паркомясто или гараж. Инвеститорът е с богат опит, специализиран в изграждането на качествени жилищни сгради, като прилага най-новите технологии и иновации в строителството в своите проекти. В близост до имота са разположени множество търговски, хранителни и денонощни магазини и обекти. Също така детска градина, училище и удобен градски транспорт с бърз превоз до метростанции “Люлин”, “Западен парк” и “Сливница”. Връзката с централната и други части на столицата се осъществява посредством бул. “Петър Дертлиев”, бул. “Добринова скала” и Околовръстен път. Агенцията ни предлага безплатна консултация и съдействие на своите клиенти при покупка на имот чрез ипотечен кредит. За повече информация и организиране на огледи, моля свържете се с нас на посочените телефони!

Оферта № 588

3mo Амалтея, заедно с лицензирания в БНБ кредитен посредник КРЕДИТ НАВИГАТОР предоставят на своите клиенти възможност да изберат най-изгодният ипотечен кредит при закупуване на своето жилище. Услугата е БЕЗПЛАТНА.

Детайли

Обновено на януари 1, 1970 в 12:00 am
  • Цена: 158,800€
  • Квадратура: 112 кв.м
  • Стаи: 3
  • Година на строителство: 2025
  • Тип на имота: Апартамент
  • Операция: За продажба

Допълнителни детайли

  • Строителство: Тухла
  • Етаж: 4-ти
  • Брой етажи на сградата: 9
  • Отопление: Газ
  • Обзавеждане: Необзаведен
  • Състояние на сградата: Завършена
  • Преход: Без преход
  • Град София
  • Област Област София-град
  • Квартал Люлин 5
  • Държава България

0 Отзив

Sort by:
Leave a Review

    Leave a Review

    Compare listings

    Сравняване
    Olx Недвижими Имоти
    • Olx Недвижими Имоти