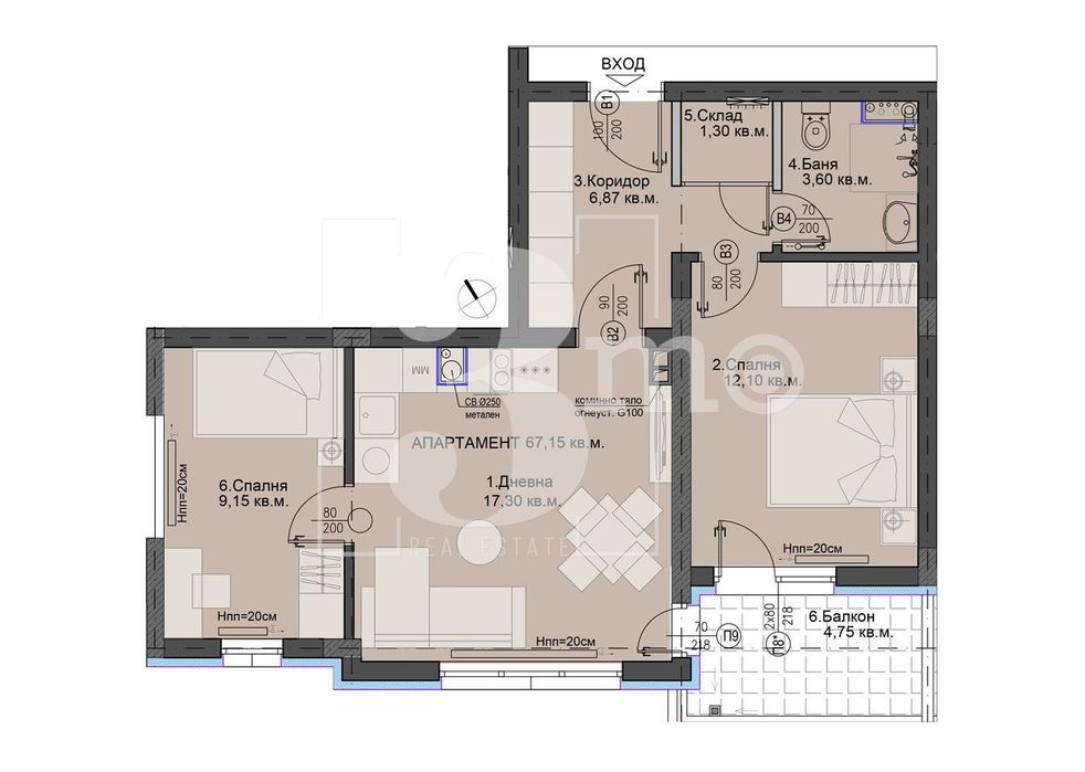
“3mo офис Амалтея” има удоволствието да Ви предложи за продажба тристаен светъл апартамент с чудесна панорамна гледка. Намира се в новострояща се модерна сграда пред акт 14 в ж.к. „Люлин“ 5 в столицата. Предложеният имот с обща площ от 77,00 кв.м. (застроена 67,15 кв.м.) и се състои от: коридор (6,87 кв.м.), всекидневна с кухненски бокс и трапезария (17,30 кв.м.) с излаз на балкон (4,75 кв.м.), спалня (12,10 кв.м.), втора спалня (9,15 кв.м.), складово помещение (1,30 кв.м.) и санитарно помещение (3,60 кв.м). Жилището е разположено на шести от общо десет етажа с изложение югозапад. Имотът се продава в степен на завършеност по БДС на цена 99330 евро и опция за индивидуална оферта от инвеститора за довършителни работи и обзавеждане. Сградата разполага с подземни гаражи и надземни паркоместа, които могат да се закупят отделно. В сградата се продават двустайни апартаменти с различни квадратури, етаж, изложение и цена. Инвеститора е с дългогодишен опит с високо качество на строителство, гаранция, модерна визия и луксозно изпълнение на общите части.
Примерна схема на плащане: 10% – при подписване на предварителен договор, 30% – Акт 14, 20% – положена вътрешна мазилка от 2 до 10 етаж (което означава Ел, ВиК, ОВ – положени всички вътрешни инсталации), 30% – Акт 15, 10% – Акт 16. Възможни са и други схеми на плащане. В строителството са вложени висок клас материали с модерно изпълнение на общите части. Всеки апартамент разполага с гледки, както към планините (Витоша, Люлин и Стара планина), така и към градските пейзажи. В близост до сградата са разположени множество и най-различни търговски, хранителни и денонощни магазини и обекти (Била, Лидъл, Кауфланд, Т-маркет и др.), бензиностанции, районно управление, детска градина, училища, спирки на градски транспорт със спирки на входовете на метростанции “Люлин”, “Западен парк” и “Сливница” за около 10 минути от сградата. Предстои изграждане на нова метростанция „Добринова скала“ на пешеходно разстояние от входа на блока. В района на имота се намират още банкови и други офиси, МБАЛ “Люлин”, кооперативен пазар множество детски площадки и един от входовете на вече обновения Западен парк, в който можете да изживявате страхотно времето си с любимите хора. Връзката с централната и други части на столицата се осъществява посредством бул. “Добринова скала “, бул. “Райко Даскалов”, бул. “Петър Дартлиев” и Околовръстен път.
Оферта № 80
Compare listings
Сравняване