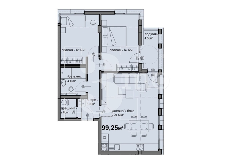
3mo Амалтея има удоволствието да ви предложи тристаен апартамент в нова модерна жилищна сграда. Планирано разрешение за ползване в края на 2026-та година. Намира се в ж.к. Люлин 5 на комуникативно място. Предложеният имот е с обща площ от 99,25 кв.м. (застроена 88,29 кв.м.) и се състои от: входно антре (6,02 кв.м.), всекидневна с кухненски бокс и трапезария (29,14 кв.м.) с лоджия (4,50 кв.м.), спалня (14,12 кв.м.), втора спалня (12,17 кв.м.), дрешник/складово помещение (2,08 кв.м.) и баня с тоалетна (4,45 кв.м.). Жилището е разположено на трети от общо девет етажа. Има изложение запад и север. Отоплението е чрез газ. Към имота може да се закупи паркомясто или гараж. Инвеститорът е с богат опит, специализиран в изграждането на качествени жилищни сгради, като прилага най-новите технологии и иновации в строителството в своите проекти. В близост до имота са разположени множество търговски, хранителни и денонощни магазини и обекти. Също така детска градина, училище и удобен градски транспорт с бърз превоз до метростанции “Люлин”, “Западен парк” и “Сливница”. Връзката с централната и други части на столицата се осъществява посредством бул. “Петър Дертлиев”, бул. “Добринова скала” и Околовръстен път. Агенцията ни предлага безплатна консултация и съдействие на своите клиенти при покупка на имот чрез ипотечен кредит. За повече информация и организиране на огледи, моля свържете се с нас на посочените телефони!
Оферта № 589
3mo Амалтея, заедно с лицензирания в БНБ кредитен посредник КРЕДИТ НАВИГАТОР предоставят на своите клиенти възможност да изберат най-изгодният ипотечен кредит при закупуване на своето жилище. Услугата е БЕЗПЛАТНА.
Compare listings
Сравняване