Продава се Тристаен апартамент в София, Люлин 6 – 108 кв.м за 1423 €/кв.м

  • 153,644€
  • 1,423€/m²
Област София-град, гр. София, Люлин 6
  • Апартамент
  • Тип на имота
  • 108
  • кв.м
  • 2026
  • Година на строителство
За продажба Агенция
Област София-град, гр. София, Люлин 6
  • 153,644€
  • 1,423€/m²

Накратко за имота

  • Апартамент
  • Тип на имота
  • 108
  • кв.м
  • 2026
  • Година на строителство

Описание

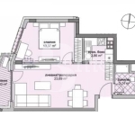
3mo Амалтея има удоволствието да ви предложи тристаен апартамент в нова жилищна сграда в ж.к. Люлин 6 с планирано разрешение за ползване през 2026-та година. Предложеният имот е с обща площ от 108,20 кв.м. (застроена 93,03 кв.м.) и се състои от: коридор (5,38 кв.м.) всекидневна с кухненски бокс и трапезария (27,87 кв.м.) с излаз на балкон (4,59 кв.м.) с чудесна гледка, просторна спалня (18,77 кв.м.) с излаз към втори балкон (1,06 кв.м.), втора спалня (11,22 кв.м.), баня с тоалетна (4,96 кв.м.) и отделна тоалетна (1,56 кв.м). Жилището е разположено на девети от общо девет етажа с изложение юг и запад. От имота се разкрива чудесна панорама към парк и Витоша планина. Апартамента се продава в степен за завършеност по БДС на цена 153644 евро. Към имота може да се закупи паркомясто или гараж. Инвеститора е с дългогодишен опит в строителството с модерна визия и луксозно изпълнение на своите сгради. В близост до жилището са разположени един от входовете към западния парк, множество и най-различни търговски, хранителни и денонощни магазини и обекти, детска градина, училища, спирка на градски транспорт с бърз превоз до входа на метростанция “Западен парк” и мега мол. Връзката с централната и други части на столицата се осъществява посредством бул. “Петър Дертлиев” и Околовръстен път. Агенцията ни предлага безплатна консултация и съдействие на своите клиенти при покупка на имот чрез ипотечен кредит. За повече информация и организиране на огледи, моля свържете се с нас на посочените телефони!

Оферта № 468

Детайли

Обновено на януари 1, 1970 в 12:00 am
  • Цена: 153,644€
  • Квадратура: 108 кв.м
  • Стаи: 3
  • Година на строителство: 2026
  • Тип на имота: Апартамент
  • Операция: За продажба

Допълнителни детайли

  • Строителство: Тухла
  • Етаж: 9-ти
  • Брой етажи на сградата: 9
  • Отопление: Електричество
  • Обзавеждане: Необзаведен
  • Състояние на сградата: Завършена
  • Преход: Без преход
  • Град София
  • Област Област София-град
  • Квартал Люлин 6
  • Държава България

0 Отзив

Sort by:
Leave a Review

    Leave a Review

    Compare listings

    Сравняване
    Olx Недвижими Имоти
    • Olx Недвижими Имоти