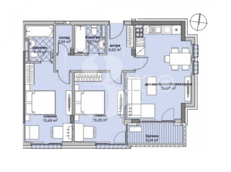
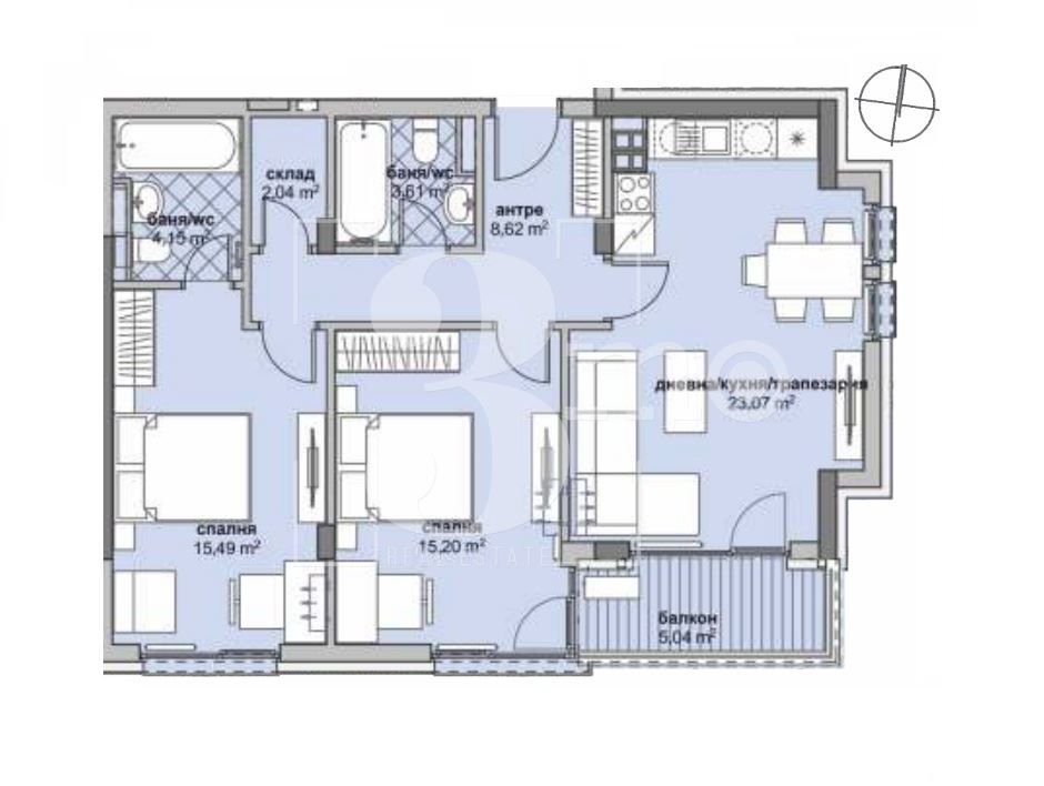
3mo Амалтея има удоволствието да ви предложи слънче тристаен апартамент в нова жилищна сграда в ж.к. Люлин 6 с планирано разрешение за ползване през 2026-та година. Предложеният имот е с обща площ от 108,65 кв.м. (застроена 92,45 кв.м.) и се състои от: входно антре (8,62 кв.м.), всекидневна с кухненски бокс и трапезария (23,07 кв.м.) с излаз на балкон (5,04 кв.м.), южна спалня (15,49 кв.м.) със своя баня с тоалетна (4,15 кв.м.), втора южна спалня (15,20 кв.м.), складово помещение (2,04 кв.м.) и втора баня с тоалетна (3,61 кв.м.). Жилището е разположено на четвърти от общо девет етажа с изложение юг и изток. Апартамента се продава в степен за завършеност по БДС на цена 157542 евро. Към имота може да се закупи паркомясто или гараж. Имотът е подходящ, както за живеене така и за инвестиция. Инвеститора е с дългогодишен опит в строителството с модерна визия, качество и луксозно изпълнение на общите части в своите сгради. В близост до жилището са разположени множество и най-различни търговски, хранителни и денонощни магазини и обекти, детска градина, училища, спирка на градски транспорт с бърз превоз до входа на метростанция “Западен парк” и мега мол. Връзката с централната и други части на столицата се осъществява посредством бул. Петър Дартлиев и Околовръстен път. Агенцията ни предлага безплатна консултация и съдействие на своите клиенти при покупка на имот чрез ипотечен кредит. За повече информация и организиране на огледи, моля свържете се с нас на посочените телефони!
Оферта № 451
Compare listings
Сравняване