Функционален двустаен апартамент в Atlantis Barcode 2!
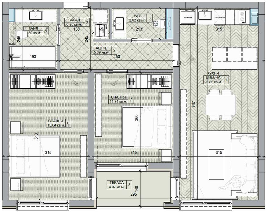
Просторен и функционален тристаен апартамент с внимателно разпределени помещения за максимален комфорт. Разполага с две уютни спални, светла и просторна дневна, комбинирана с практична кухня, голяма баня, допълнителна тоалетна, удобно складово помещение и функционална тераса. Апартаментът се отличава с изцяло южно изложение, което осигурява топлина и светлина през целия ден идеален избор за вашия нов дом!
Параметри на апартамента:
• Площ: 97.62 кв.м
• Етаж: 3-ти
• Изложение: Юг
Отлично местоположение:
Комплексът Atlantis Barcode 2 е разположен в добре развит и комуникативен район – Люлин 6, в близост до кръстовището на бул. Панчо Владигеров и бул. Петър Дертлиев. Локацията предлага:
Панорамна гледка към Витоша
Бърз достъп до ключови пътни артерии:
• Околовръстен път
• Автомагистрала “Струма”
• Бул. “Царица Йоана”
• Бул. “Сливница”
Модерен дизайн и изключителни удобства:
Три сгради с различна етажност, вдъхновени от южната ориентация
7 дка зелени площи – алеи за разходки, зони за отдих, детска площадка и фитнес на открито
SMART технологии:
• Видео наблюдение и контрол на достъпа
• Лицево разпознаване и управление на входните системи през телефон
• Автоматичен портал с разпознаване на автомобилни номера
Висококачествено строителство:
• Вентилируема фасада за енергийна ефективност
• Централно отопление (ТЕЦ) и изводи за климатици във всяка стая
• Френски прозорци за максимална естествена светлина
• Зарядни станции за електромобили
• Високоскоростни асансьори за 9 души
Етапи на строителство:
• Старт: Март 2025 г.
• Завършване на Сграда А: До края на 2026 г.
Инвеститор с опит и визия:
Atlantis Bulgaria Holding е водещ строител и предприемач с над 25 години опит:
• Повече от 25 реализирани проекта с издаден АКТ 16 и над 160 000 м² РЗП.
• Развива текущи проекти с площ над 100 000 м² РЗП.
• Над 2000 семейства са се доверили на компанията за своя дом.
• Приоритетите на компанията са комфортът, сигурността и високата инвестиционна привлекателност на проектите.
• Награди: “Сграда на Годината” (2020) и “Инвеститор на Годината” (2019)
• Директна продажба от инвеститора – без комисионни
Повече информация на:
www.atlantisbarcode.com
Не пропускайте възможността да инвестирате в дом или изгоден имот в един от най-модерните комплекси на София!
Телефон за контакт: 070010210
Atlantis Barcode 2 – Съвременният начин на живот, създаден с мисъл за вас!
Compare listings
Сравняване