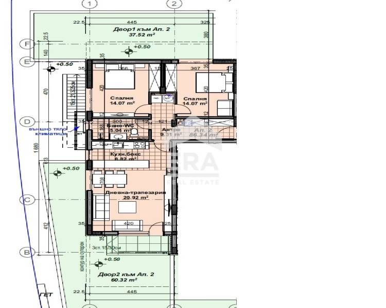
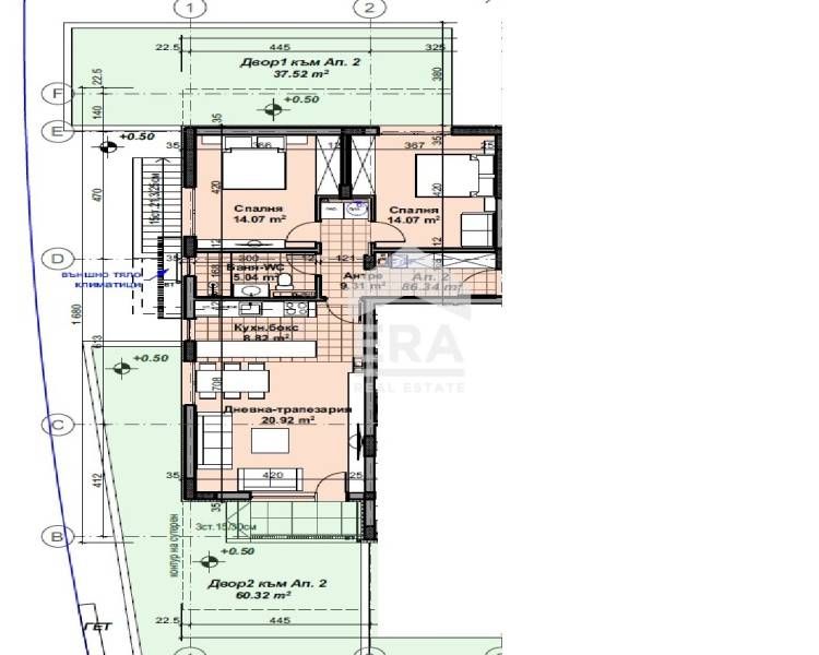
ЕРА Фаворит предлага за продажба прекрасен тристаен апартамент, разположен на партерно ниво в новострояща се сграда с локация в местност Гърдова глава в кв. Бояна. Разпределение: входно антре, дневна с трапезария и кухненски бокс, от която се излиза на тераса и двор 2 към апартамента – 60 кв.м.; две самостоятелни спални с излаз към двор 1 – 38 кв.м., баня с тоалетна. Сградата е в начален етап на строителство и се намира на тиха локация, далеч от градския шум. Изложението на двете спални и двор 1 е северно и с гледка към София и Стара планина, а на дневната и двор 2 – южно изложение с гледка към Копитото и Витоша.
Общите части на сградата ще бъдат луксозно изпълнени и оборудвани с гранит,дървена ламперия и луксозен хидравличен асансьор. Апартаментите са проектирани по европейски стандарти,определя един по-добър жилищен обем и предоставя усещането за много простор и слънчева светлина. Предвидена е шумоизолация, прозорците ще бъдат оборудвани с шесткамерна дограма с трислоен стъклопакет и К стъкло,шумо- и топлоизолация. Проектът е с богато озеленени общи части и самостоятелна паркова среда с детски кът.
Допълнителни екстри са външно LED осветление, видеодомофонна система, видеонаблюдение и контрол на достъп към сградата и подземния гараж. СОТ система, електронни водомери, електрически щори, изводи за климатици във всяка стая.
Локацията на имота е на тиха улица на втора линия от активното движение на автомобили и далеч от градския шум. Сградата предлага комфорт за естети!
Агенция ЕРА Фаворит е член на НСНИ и администратор на лични данни.
Преди огледа се провежда среща в нашия офис, за да се запознаем с изискванията Ви и за да оформим документи съгласно ЗЗД и ЗМИП.
По време на огледа се подписва Протокол за оглед. За този имот се дължи комисион към агенцията.
Предлагаме Ви юридическо съдействие през целия процес на покупката.
Агенцията съдейства за безплатна кредитна консултация от CREDITERA – лицензиран финансов брокер към БНБ!
Всеки ERA офис е с независимо управление и собственост!
Оферта №7200061
Compare listings
Сравняване