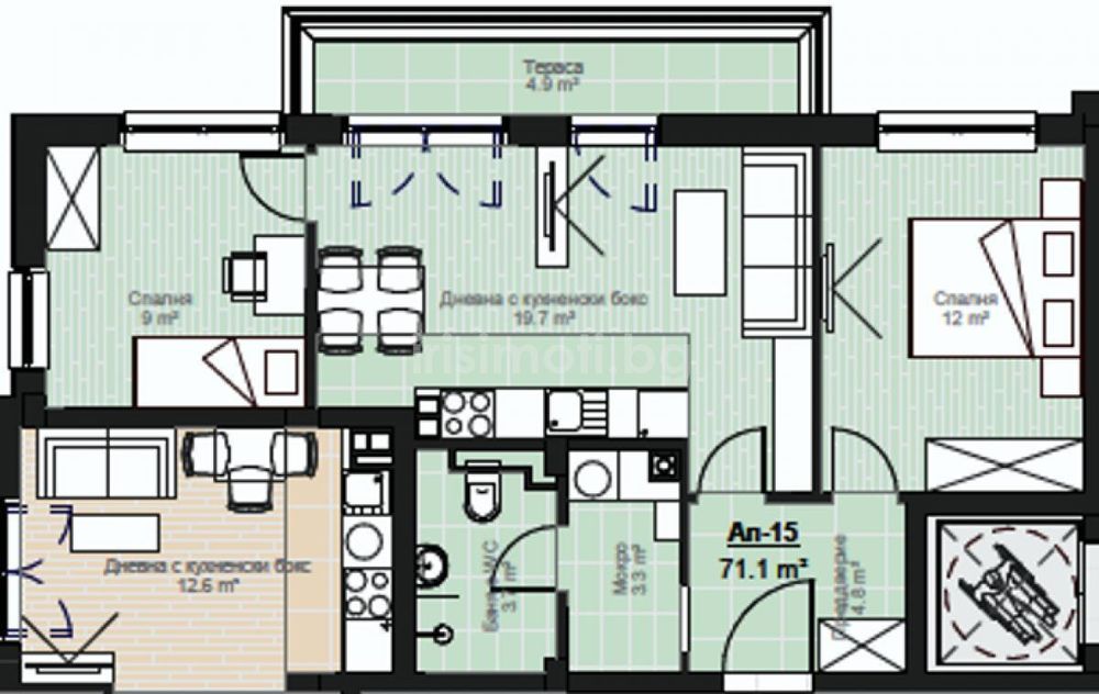
БЕЗ КОМИСИОНА ОТ КУПУВАЧА! Имаме удоволствието да Ви представим луксозна жилищна сграда в кв.Малинова долина, в непосредствена близост до зимния дворец, спирки на градски транспорт, големи хранителни вериги, детски градини, училища и университети. Главни пътни артерии гарантират бързо придвижване в рамките на София и цялата страна. Всички имоти в нея са със статут апартамент. Сградата има сутерен, партер и шест надземни етажа. На ниво сутерен е разположена обширна паркинг зона с топла връзка. Всяко жилище има собствено складово помещение разположено в подземното ниво. Етап на строителство – изкоп.
На втори етаж, апартаментът се състои от: всекидневна с кухненски бокс, две спални, баня с тоалетна, балкон. Предава се на шпакловка и замазка, входна блиндирана с метална каса врата, шесткамерна ПВЦ дограма със стъклопакет – четири сезона, ВиК и ел.инсталация, луксозни общи части, система за контрол на достъп. Гъвкави схеми на плащане. Има възможност за закупуване на гаражи и паркоместа. В сградата има и други двустайни апартаменти.
Compare listings
Сравняване