Продава се Тристаен апартамент в София, Малинова долина – 84 кв.м за 1202 €/кв.м

  • 197,400€
  • 1,201€/m²
Област София-град, гр. София, Малинова долина
Продава се Тристаен апартамент в София, Малинова долина - 84 кв.м за 1202 €/кв.м - Снимка #4
  • Апартамент
  • Тип на имота
  • 84
  • кв.м
  • 2027
  • Година на строителство
За продажба Агенция
Област София-град, гр. София, Малинова долина
  • 197,400€
  • 1,201€/m²

Накратко за имота

  • Апартамент
  • Тип на имота
  • 84
  • кв.м
  • 2027
  • Година на строителство

Описание

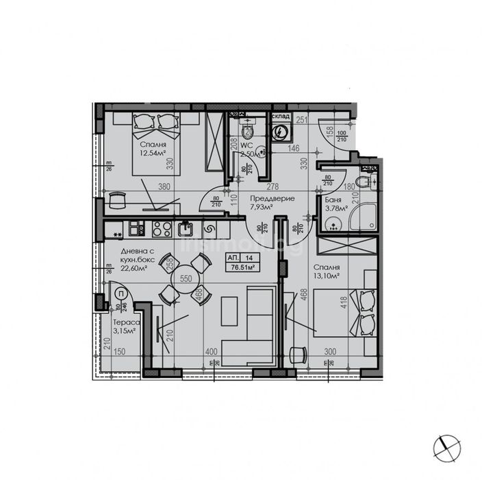
Продава се тристаен апартамент в Малинова долина. Сградата е в начален етап. Предвиден е срока за изграждане края на 2027 год. Строежът се изпълнява с най висококачествени материали – високоенергийни керамични блоковетоплоизолационна система BAUMIT, вентилируема фасада с Винил Бонд и технически камък, високоефективни асансьори за жилищни сгради Unuken, дограма Salamander green Evolution 76 – стилна и надеждна прозоречна система с 6 камери, отлична топлоизолация и шумоизолация. Има възможност за закупуване на подземни гаражи и паркоместа. Апартаментът е разположен на втори етаж, с обща площ 76,51м2. Състоящ се от предверие, дневна с кухненски бокс, две непреходни спални, една баня с тоалетна и една отделна тоалетна, както и тераса.

Локацията е: близо до Симеоновско шосе, детска градина, бъдеща метростанция.

Начина на плащане е съобразен с възможностите на купувача.

Детайли

Обновено на януари 1, 1970 в 12:00 am
  • Цена: 197,400€
  • Квадратура: 84 кв.м
  • Стаи: 3
  • Година на строителство: 2027
  • Тип на имота: Апартамент
  • Операция: За продажба

Допълнителни детайли

  • Строителство: Тухла
  • Етаж: 2-ри
  • Брой етажи на сградата: 4
  • Отопление: Електричество
  • Обзавеждане: Необзаведен
  • Състояние на сградата: В строеж
  • Преход: Без преход

Особености

  • Град София
  • Област Област София-град
  • Квартал Малинова долина
  • Държава България

0 Отзив

Sort by:
Leave a Review

    Leave a Review

    Compare listings

    Сравняване
    Olx Недвижими Имоти
    • Olx Недвижими Имоти