Продава се Тристаен апартамент в София, Малинова долина – 99 кв.м за 1633 €/кв.м

  • 161,667€
  • 1,633€/m²
Област София-град, гр. София, Малинова долина
Продава се Тристаен апартамент в София, Малинова долина - 99 кв.м за 1633 €/кв.м - Снимка #4
  • Апартамент
  • Тип на имота
  • 99
  • кв.м
  • 2026
  • Година на строителство
За продажба Агенция
Област София-град, гр. София, Малинова долина
  • 161,667€
  • 1,633€/m²

Накратко за имота

  • Апартамент
  • Тип на имота
  • 99
  • кв.м
  • 2026
  • Година на строителство

Описание

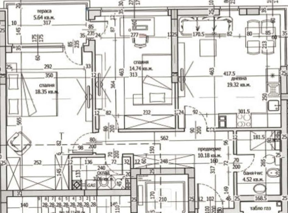
Революшън Естейт Ви представя тристаен апартамент в затворен комплекс от 2 жилищни сгради В СТРОЕЖ в ж.к. Малинова долина.

Локация: Квартал Малинова долина, ул. Георги Русев на 200 метра от Симеоновско шосе.

Имотът е разположен на 3-ти жилищен етаж от общо 6.

Площ РЗП 99.79 кв.м. ЗП 88.47 кв.м.

Разпределение: входно антре, всекидневна с кухненски бокс, две спални, баня с тоалетна, склад и тераса.

Степен на завършеност: В СТРОЕЖ;

Очаквано завършване: началото на 2026г.

За повече информация не се колебайте да се свържете с нас и да цитирате референтен номер: 8985 в сграда с ID: 782.

Детайли

Обновено на януари 1, 1970 в 12:00 am
  • Цена: 161,667€
  • Квадратура: 99 кв.м
  • Стаи: 3
  • Година на строителство: 2026
  • Тип на имота: Апартамент
  • Операция: За продажба

Допълнителни детайли

  • Строителство: Тухла
  • Етаж: 3-ти
  • Брой етажи на сградата: 6
  • Отопление: Газ
  • Обзавеждане: Необзаведен
  • Състояние на сградата: В строеж
  • Преход: Без преход

Особености

  • Град София
  • Област Област София-град
  • Квартал Малинова долина
  • Държава България

0 Отзив

Sort by:
Leave a Review

    Leave a Review

    Compare listings

    Сравняване
    Olx Недвижими Имоти
    • Olx Недвижими Имоти