Продава се Тристаен апартамент в София, Младост 4 – 90 кв.м за 1247 €/кв.м

  • 219,444€
  • 1,246€/m²
Област София-град, гр. София, Младост 4
Продава се Тристаен апартамент в София, Младост 4 - 90 кв.м за 1247 €/кв.м - Снимка #4 Продава се Тристаен апартамент в София, Младост 4 - 90 кв.м за 1247 €/кв.м - Снимка #5 Продава се Тристаен апартамент в София, Младост 4 - 90 кв.м за 1247 €/кв.м - Снимка #6 Продава се Тристаен апартамент в София, Младост 4 - 90 кв.м за 1247 €/кв.м - Снимка #7 Продава се Тристаен апартамент в София, Младост 4 - 90 кв.м за 1247 €/кв.м - Снимка #8
  • Апартамент
  • Тип на имота
  • 90
  • кв.м
  • 1970
  • Година на строителство
За продажба Частно лице
Област София-град, гр. София, Младост 4
  • 219,444€
  • 1,246€/m²

Накратко за имота

  • Апартамент
  • Тип на имота
  • 90
  • кв.м
  • 1970
  • Година на строителство

Описание

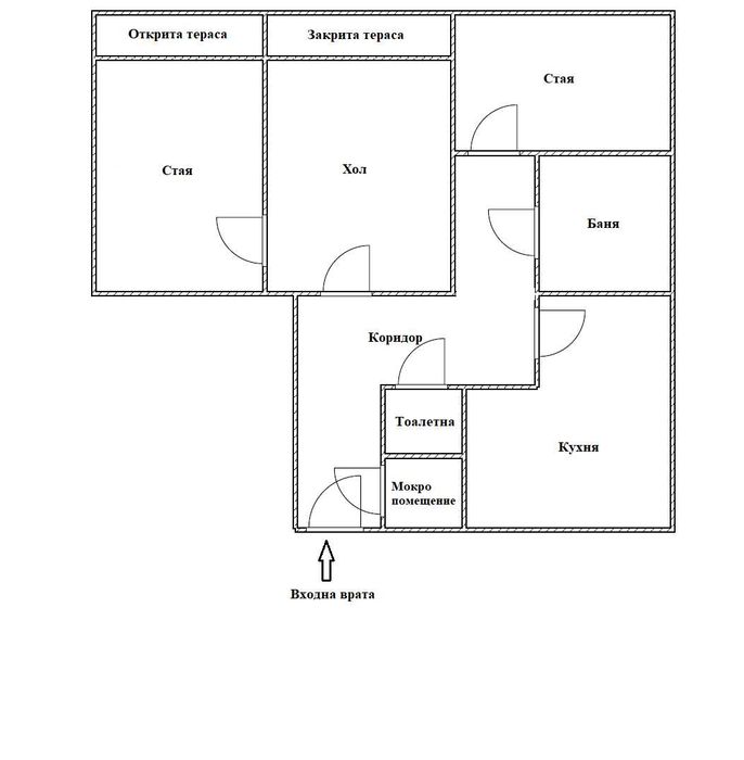
Жилището е за основен ремонт.

Основни характеристики:

– 90,13 кв.м по нотариален акт;

– Мазе – 4,59 кв.м;

– Жилището е на ет.2 от 6 етажен блок;

– Панел;

– Отопление: ТЕЦ (само за битова гореща вода). Отоплителните тела са демонтирани, а цялата входна инсталация е изключена от „Топлофикация София“ ЕАД, което води до по-ниски разходи за сградна инсталация.

– Блока се намира срещу входа на Бизнес Парк-а и на 2 минути от метростанция;

– Свободно паркиране около блока;

– Удобство за електромобили – зарядна точка до входа;

– Просторна дневна (хол) с излаз на закрита тераса и сменена вътрешна и външна дограма;

– Две стаи – едната от които е със сменена дограма;

– Отделна кухня;

– Коридор;

– Баня;

– Отделна тоалетна;

– Мокро помещение;

– Въведен в експлоатация 1970г. – 1979г.

– Цена 220 000 евро – възможна разумна корекция на цената.

– За повече инфо на лично.

Детайли

Обновено на януари 1, 1970 в 12:00 am
  • Цена: 219,444€
  • Квадратура: 90 кв.м
  • Стаи: 3
  • Година на строителство: 1970
  • Тип на имота: Апартамент
  • Операция: За продажба

Допълнителни детайли

  • Строителство: Панел
  • Етаж: 2-ри
  • Брой етажи на сградата: 6
  • Отопление: ТЕЦ
  • Обзавеждане: Необзаведен
  • Състояние на сградата: Завършена
  • Преход: С преход
  • Град София
  • Област Област София-град
  • Квартал Младост 4
  • Държава България

0 Отзив

Sort by:
Leave a Review

    Leave a Review

    Compare listings

    Сравняване
    Olx Недвижими Имоти
    • Olx Недвижими Имоти