Продава се Тристаен апартамент в София, Овча купел 1 – 86 кв.м за 1623 €/кв.м

  • 139,500€
  • 1,622€/m²
Област София-град, гр. София, Овча купел 1
  • Апартамент
  • Тип на имота
  • 86
  • кв.м
  • 2025
  • Година на строителство
За продажба Агенция
Област София-град, гр. София, Овча купел 1
  • 139,500€
  • 1,622€/m²

Накратко за имота

  • Апартамент
  • Тип на имота
  • 86
  • кв.м
  • 2025
  • Година на строителство

Описание

Компания `ЕКС` представя на Вашето внимание тристаен апартамент в жк Овча Купел 1.

МЕСТОПОЛОЖЕНИЕ: В близост до метростанция, спирка на градски транспорт, детска градина, училище, магазини от всякакъв тип.

СТРОИТЕЛСТВО: Апартаментът е ситуиран на 2-ри етаж в нова тухлена сграда с очакван АКТ 16 в началото на 2025 г.

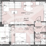
РАЗПРЕДЕЛЕНИЕ: Жилището разполага с площ от 86 кв.м., разпределена във входно антре, дневна с трапезария и кухненски бокс, две спални, баня с тоалетна, склад и тераса.

СЪСТОЯНИЕ: На шпакловка и замазка.

Заповядайте да Ви го покажем. Използвайки нашите услуги Вие ще превърнете закупуването на новия си дом в едно приятно изживяване, ще получите персонален консултант, съдействие при кандидатстване за кредит от всички банки в България, интериорни дизайнери и екип, който да се погрижи за нужните документи по Вашата сделка. На Ваше разположение сме всеки ден, от понеделник до неделя от 09:00 до 20:00ч. Възползвайте се от безплатна консултация в наш офис, където ще ви спестим време и ще ви запознаем с всички актуални имоти в България, отговарящи на Вашето търсене. Свържете се с нас на 08*********90 или на 08*********57 и цитирайте кода към имота: 49011.

Детайли

Обновено на януари 1, 1970 в 12:00 am
  • Цена: 139,500€
  • Квадратура: 86 кв.м
  • Стаи: 3
  • Година на строителство: 2025
  • Тип на имота: Апартамент
  • Операция: За продажба

Допълнителни детайли

  • Строителство: Тухла
  • Етаж: 2-ри
  • Брой етажи на сградата: 6
  • Отопление: Локално
  • Обзавеждане: Необзаведен
  • Състояние на сградата: В строеж
  • Преход: Без преход

Особености

  • Град София
  • Област Област София-град
  • Квартал Овча купел 1
  • Държава България

0 Отзив

Sort by:
Leave a Review

    Leave a Review

    Compare listings

    Сравняване
    Olx Недвижими Имоти
    • Olx Недвижими Имоти