Представяме ви прекрасен тристаен апартамент в Овча Купел . Намира се на четвърти етаж от пет етажна нова сграда.
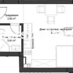
Имотът е със следното разпределение: антре, хол с кухненски бокс, две спални, мокро помещение,тоалетна, баня с тоалетна и две тераси .
Мазе 14кв.м..
АКТ 16 средата на 2024 г.
В сградата няма асансьор.
Парко място в двора на сградата.
Изложението е запад-изток. Чистата застроена площ на имота е 108кв.м.. Намира се на 15 мин. пешеходно разстояние от метростанция ‘Овча Купел’, спирки на градски транспорт, в близост до “66 СУ „Филип Станиславов“
Огледите се провеждат с предварителна уговорка.
С КЛЮЧ В АГЕНЦИЯТА!
Агенция BAS Properties предлага напълно безплатно съдействие при банково финансиране.
Compare listings
Сравняване