Просторен двустаен апартамент в нова качествена сграда в Овча Купел.
Етап на строителство: преди Акт 14.
Сграда: нова качествена тухлена сграда в един от най – предпочитаните южни квартали на столицата
Проектът се сътои от три сгради, като крайният срок за завършването на сгради А и Б е през пролетта на 2028 година. Сградите имат достъп от улица – тупик от юг, и от улица от северната страна на имота. В двете сгради има общо 55 апартамента и 8 ателиета.
Местопологжение: В близост до сградата се намират `Нов Български Университет`, спирки на градския транспорт, детски ясла и градина, магазин `Билла`. На около 600 м. от метростанция `Мизия`. Близостта на проекта до учебни заведения, както и високата ликвидност на имотите в района го прави привлекателен и за покупка с цел отдаване под наем. Паркирането е решено с подземни паркоместа и гаражи.
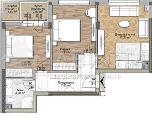
Разпределение на имота: дневна с кухненски бокс, спалня, дрешник, баня с тоалетна, коридор. Към апартамента има и мазе.
Изложение: югозапад.
Предимства: Инвестиционен имот на много добра пазарна цена; с просторни помещения и в качествена нова сграда на доказан инвеститор; близостта му до НБУ и метростанция го прави перфектен за отдаване под наем.
Compare listings
Сравняване