Продава се Тристаен апартамент в София, в.з. Малинова долина – 172 кв.м за 1492 €/кв.м

  • 256,500€
  • 1,491€/m²
Област София-град, гр. София, в.з. Малинова долина
Продава се Тристаен апартамент в София, в.з. Малинова долина - 172 кв.м за 1492 €/кв.м - Снимка #4 Продава се Тристаен апартамент в София, в.з. Малинова долина - 172 кв.м за 1492 €/кв.м - Снимка #5 Продава се Тристаен апартамент в София, в.з. Малинова долина - 172 кв.м за 1492 €/кв.м - Снимка #6
  • Апартамент
  • Тип на имота
  • 172
  • кв.м
  • 2025
  • Година на строителство
За продажба Агенция
Област София-град, гр. София, в.з. Малинова долина
  • 256,500€
  • 1,491€/m²

Накратко за имота

  • Апартамент
  • Тип на имота
  • 172
  • кв.м
  • 2025
  • Година на строителство

Описание

ДИРЕКТНО ОТ ИНВЕСТИТОР! БЕЗ ИНДЕКСАЦИЯ НА ЦЕНИТЕ! БЕЗ КОМИСИОННА! С АКТ 14!

Prestige Building представя тристаен апартамента в Сграда А на нов жилищен комплекс състоящ се от две сгради в кв. Малинова долина гр. София в близост до Национална Спортна Академия.

Доказан и коректен инвеститор с опит и качество в строителството!

Сградата е с Акт 14.

Декември месец 2024 г. Акт 15

До месец април 2025 г. Акт 16

Цена 256 500 евро

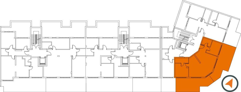
Апартамент АП.05.83+84 е с обща площ 171.71 m². Разположен е на последен пети жилищен етаж от сградата. Целият апартамент е обграден с тераса от която се открива гледка към планината Витоша. Разпределението е интересно и нестандартно както следва: Антре, две спални, две бани с тоалетна, огромен разчупен преходен хол и кухня с просторно място за мека мебел. Прилагаме схема на разпределение за Ваше удобство.

– 171.71 m². + 1 склад – 3.3 m² към апартамента

– Изложение – ЮГОИЗТОК

– Етаж – 5 от 5

– ГАЗ (енергиен сертификат А+)

– Задължително е закупуването на подземно паркомясто или гараж към апартамента.

Пусков срок на обекта месец април 2025 г.

За огледи или повече информация моля позвънете – 08******77

Детайли

Обновено на януари 1, 1970 в 12:00 am
  • Цена: 256,500€
  • Квадратура: 172 кв.м
  • Стаи: 3
  • Година на строителство: 2025
  • Тип на имота: Апартамент
  • Операция: За продажба

Допълнителни детайли

  • Строителство: Тухла
  • Етаж: 5-ти
  • Брой етажи на сградата: 5
  • Отопление: Газ
  • Обзавеждане: Необзаведен
  • Състояние на сградата: В строеж
  • Преход: С преход
  • Град София
  • Област Област София-град
  • Квартал в.з. Малинова долина
  • Държава България

0 Отзив

Sort by:
Leave a Review

    Leave a Review

    Compare listings

    Сравняване
    Olx Недвижими Имоти
    • Olx Недвижими Имоти