ТРИСТАЕН АПАРТАМЕНТ в нова жилищна сграда, разположена в КВ. ИЗГРЕВ, ГР. СВИЛЕНГРАД.
Агенция за недвижими имоти „МИРА“ предлага за продажба:
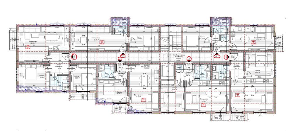
АПАРТАМЕНТ № 20:
• Площ: 97,82 кв.м
• Етаж: 4-ти (жилищен)
• Цена: 97 820 €
• Изложение: запад
РАЗПРЕДЕЛЕНИЕ:
• Антре / коридор
• Хол / всекидневна с кухненски бокс с излаз към тераса
• Спалня
• Втора спалня с излаз към тераса
• Баня с тоалетна
ЗА СГРАДАТА:
• Сградата включва, двустайни и тристайни апартаменти с площ от 69,90 кв.м до 97,82 кв.м, разпределени на четири жилищни етажа и апартаменти.
• Опция за закупуване на складово помещение.
• На разположение са външни паркоместа и гаражи за покупка.
• Локацията е само на 5 минути пешеходно разстояние от центъра на града.
• Гъвкава схема на плащане – възможност за разсрочено плащане без оскъпяване.
КАЧЕСТВО И НАДЕЖДНОСТ:
• Сградата се изгражда от доказани инвеститори, използващи модерни технологии и висококачествени материали
• Монолитна стоманобетонна конструкция, оразмерена за земетръс
• Червени керамични тухли от водещ европейски производител
• Топло-, хидро- и шумоизолации
• Качествена дограма с високоефективни и нискоемисионни стъкла
• Стилна фасада с класическа градска архитектура
• Естествен камък по стълбищата и коридорите, модерни вътрешни мазилки
• Асансьор от най-висок клас, представителни общи части
НЕ ОТЛАГАЙТЕ!
ЗАПАЗЕТЕ ИМОТА С КАПАРО ОТ САМО 1000 ЛВ!
СТАРТ НА СТРОЕЖА – ОКТОМВРИ 2025
Осигуряваме съдействие за банково кредитиране при най-добри условия, пазарна оценка и пълна юридическа проверка.
МЕЖДУНАРОДНО ОБСЛУЖВАНЕ:
Предоставяме консултации на:
Български | English | Русский | Türkçe | Nederlandse
Свържете се с нас за оглед и персонална оферта:
Compare listings
Сравняване