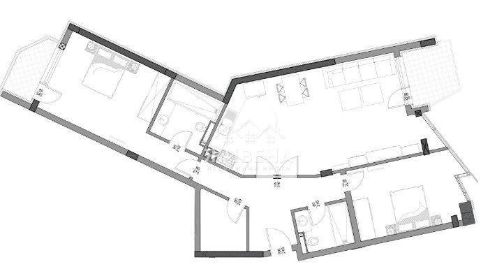
Агенция Живена предлага за продажба тристаен апартамент, с високи тавани около 3 метра, в елитна жилищна сграда в сърцето на град Варна. Намира се на 3 жилищен етаж, с обща площ от 156.74 кв.м, състоящ се от: входно антре, дневна стая с кухня (39.18 кв.м), тераса с изход от дневна стая (7.38 кв.м), 2 спални (21.35 и 15.92 кв.м), едната от които е със собствена баня и тоалетна (6.28 кв.м) и изход към втората тераса (4.08 кв.м), още една баня с тоалетна (4.37 кв.м), килер (4.74 кв.м). Изложението е югоизток и запад. Сградата е архитектурно-строителна недвижима културна ценност от новото време с категория „ансамблово значение”. В момента е изцяло завършена, с акт 15. Проектът предвижда свързано застрояване на жилищна сграда, решена на шест надземни етажа. Автомобилният достъп до гаража на сградата се осъществява от запад, посредством рампа. В проекта се предвижда запазването на цялостния екстериорен архитектурен облик на съществуващата сграда, чрез подменянето, реконструирането и възстановяването на всички архитектурни декоративни елементи, по подобие на запазените такива. В сградата има: 21 апартамента, 4 офиса и 17 двойни паркоместа, кафе-сладкарница. Имотите ще се предават във вида по БДС. Има възможност за довършване до ключ, както и покупка на други имоти в същата сграда. За повече информация и огледи, моля свържете се с мен. Агенция Живена извършва необходимите проверки на имота, който сте избрали, организира всички етапи на сделката до нейното финализиране. Оказваме съдействие за отпускане на банков кредит. Оферта № 4304
Compare listings
Сравняване