Продава се Тристаен апартамент в Варна, Цветен квартал – 104 кв.м за 1904 €/кв.м

  • 198,000€
  • 1,904€/m²
Област Варна, гр. Варна, Цветен квартал
  • Апартамент
  • Тип на имота
  • 104
  • кв.м
  • 2027
  • Година на строителство
За продажба Агенция
Област Варна, гр. Варна, Цветен квартал
  • 198,000€
  • 1,904€/m²

Накратко за имота

  • Апартамент
  • Тип на имота
  • 104
  • кв.м
  • 2027
  • Година на строителство

Описание

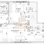
Агенция Живена предлага за продажба тристаен апартамент в малка жилищна сграда, в строеж, разположена на отлично място в Цветен квартал. Имотът е разположен на етаж 3 от 7, с обща площ – 103.56 кв.м, ЗП: 90.64 кв.м, с изложение: юг/северооизток. Състои се от дневна с кухненски бокс (26.3 кв.м), 2 спални (13.6 и 13.3 кв.м), баня с тоалетна (4.1 кв.м), килер (2.4 кв.м), перално (1.7 кв.м), коридор (10.7 кв.м) и лоджия (3.8 кв.м). Издава се в степен на завършеност по БДС: вътрешни стени – тухла с гипсова мазилка, тавани гипсокартон, под на стаи – циментова замазка, баня – тоалет: под циментова замазка, стени вароциментова мазилка, ел. инсталация: завършена напълно до ключове, контакти, оптичен кабел до апартамент; В и К инсталации: завършени до тапа; изграждане на тръбни връзки за монтаж на климатици, на определени по архитектура места; външна врата блиндирана с облечена декоративна каса; прозорци: висококачествена PVC дограма – 7 камерна с тройни стъклопакети, 6 мм четири сезона/ 4 мм бяло флоатно стъкло/ 4 мм К. Възможност за покупка на открити и закрити паркоместа на цени от 25 000 евро. Сградата е с модерна визия и се състои от 7 жилищни етажа и 1 подземно ниво (закрит паркинг). Започнат строеж – през март 2025, очакван Акт 16 – през лятото на 2027 г. Общи части на сградата: подови настилки и стъпала от гранитогрес или гранит; стени – декоративна мазилка; асансьор – ORONA; паркинг – шлайфан бетон на под; фасада – комбинация от мазилка с камък, HPL и керамика; покрив – хидро и топлоизолация. В сградата са налични и други тристайни апартаменти и един четиристаен мезонет. Предлагат се определени схеми на плащане след оставен депозит. Агенция Живена извършва необходимите проверки на имота, който сте избрали, организира всички етапи на сделката до нейното финализиране. Оказваме съдействие за отпускане на банков кредит. Оферта № 7488

Детайли

Обновено на януари 1, 1970 в 12:00 am
  • Цена: 198,000€
  • Квадратура: 104 кв.м
  • Стаи: 3
  • Година на строителство: 2027
  • Тип на имота: Апартамент
  • Операция: За продажба

Допълнителни детайли

  • Строителство: Тухла
  • Етаж: 3-ти
  • Брой етажи на сградата: 8
  • Отопление: Електричество
  • Обзавеждане: Необзаведен
  • Състояние на сградата: Завършена
  • Преход: Без преход
  • Град Варна
  • Област Област Варна
  • Квартал Цветен квартал
  • Държава България

0 Отзив

Sort by:
Leave a Review

    Leave a Review

    Compare listings

    Сравняване
    Olx Недвижими Имоти
    • Olx Недвижими Имоти