Продава се Тристаен апартамент в Варна, Цветен квартал – 107 кв.м за 1918 €/кв.м

  • 205,200€
  • 1,918€/m²
Област Варна, гр. Варна, Цветен квартал
  • Апартамент
  • Тип на имота
  • 107
  • кв.м
  • 2026
  • Година на строителство
За продажба Агенция
Област Варна, гр. Варна, Цветен квартал
  • 205,200€
  • 1,918€/m²

Накратко за имота

  • Апартамент
  • Тип на имота
  • 107
  • кв.м
  • 2026
  • Година на строителство

Описание

ТОПИММО предлага за продажба тристаен имот в новострояща се сграда в Цветен квартал. В непосредствена близост до главни пътни артерии, спирки на градски транспорт, хипермаркети, детски градини, училище, ресторанти.

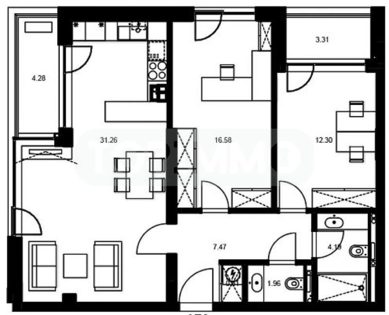
Разположен на втори етаж от девет и е със следното разпределение: антре, всекидневна с кухненска част 31.26 кв.м. с излаз на тераса, спалня 16.60 кв.м., втора спалня 12.30 кв.м. с излаз на втора тераса, два санитарни възела.

Имотът ще бъде издаден съгласно БДС стандарт с възможност завършендо ключ . Възможност за закупуване на подземно или надземно паркомясто.

Луксозната сграда ще бъде построена върху парцел с площ от 2150 кв.м., което позволява достатъчно отстояние от околните сгради, даващо усещане за простор между съществуващите обекти. А от високите етажи ще се открива панорама към Варненското езеро.

Общият брой на жилищните и нежилищните обекти е 71.

Предвидени са 30 закрити паркоместа на ниво -1, както и 41 открити паркоместа в границите на имота.

Гъвкави схеми на плащане, което е възможност за инвестиция-обявената цена е при първоначална вноска 80% от общата сума. Предлагаме пет различни схеми на плащане за Ваше улеснение.

В сградата предлагаме също така двустайни и четиристайни апартаменти.

Използвайки нашите услуги за покупката на новия си дом ще получите съдействие и БЕЗПЛАТНА професионална консултация от наш кредитен консултант.

За повече информация и оглед, свържете се с нас! Референтен номер: PL-3216

Детайли

Обновено на януари 1, 1970 в 12:00 am
  • Цена: 205,200€
  • Квадратура: 107 кв.м
  • Стаи: 3
  • Година на строителство: 2026
  • Тип на имота: Апартамент
  • Операция: За продажба

Допълнителни детайли

  • Строителство: Тухла
  • Етаж: 2-ри
  • Брой етажи на сградата: 9
  • Отопление: Електричество
  • Обзавеждане: Необзаведен
  • Състояние на сградата: В строеж
  • Преход: Без преход
  • Град Варна
  • Област Област Варна
  • Квартал Цветен квартал
  • Държава България

0 Отзив

Sort by:
Leave a Review

    Leave a Review

    Compare listings

    Сравняване
    Olx Недвижими Имоти
    • Olx Недвижими Имоти