Продава се Тристаен апартамент в Варна, Галата – 120 кв.м за 1546 €/кв.м

  • 185,500€
  • 1,546€/m²
Област Варна, гр. Варна, Галата
  • Апартамент
  • Тип на имота
  • 120
  • кв.м
  • 2026
  • Година на строителство
За продажба Агенция
Област Варна, гр. Варна, Галата
  • 185,500€
  • 1,546€/m²

Накратко за имота

  • Апартамент
  • Тип на имота
  • 120
  • кв.м
  • 2026
  • Година на строителство

Описание

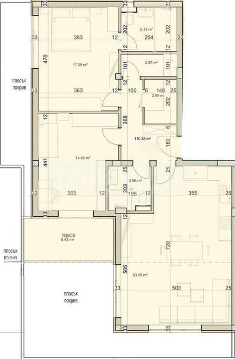
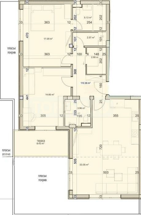
ТОПИММО предлага за продажба тристаен апартамент в новострояща се сграда в кв. Галата в близост до автобусна спирка, магазини и плажната ивица на квартала.

Имотът е с югозападно изложение, с правилни форми на помещенията и следното разпределения: антре с килер, просторна всекидневна 33 кв.м. с кухненски бокс, спалня 14.7,тераса 8.4 кв.м. с излаз от дневната и спалнята, втора спалня 17 кв.м. със собствен санитарен възел, втори санитарен възел, перално помещение. Плосък покрив описващ целия имот, който може да се използва като втора панорамна тераса с гледка към града и залива.

Апартаментът ще бъде издаден съгласно БДС стандарт.

С възможност за закупуване напаркомясто или гараж.

Поради благоприятната си локация, имотът е подходящ както за лично ползване, така и за отдаване под наем дългосрочно или краткосрочно.

Използвайки нашите услуги за покупката на новия си дом ще получите съдействие и БЕЗПЛАТНА професионална консултация от наш кредитен консултант.

Можем да организираме оглед в удобно за вас време, свържете се с нас! Референтен номер:PL-3698

Детайли

Обновено на януари 1, 1970 в 12:00 am
  • Цена: 185,500€
  • Квадратура: 120 кв.м
  • Стаи: 3
  • Година на строителство: 2026
  • Тип на имота: Апартамент
  • Операция: За продажба

Допълнителни детайли

  • Строителство: Тухла
  • Етаж: 4-ти
  • Брой етажи на сградата: 4
  • Отопление: Електричество
  • Обзавеждане: Необзаведен
  • Състояние на сградата: В строеж
  • Преход: Без преход
  • Град Варна
  • Област Област Варна
  • Квартал Галата
  • Държава България

0 Отзив

Sort by:
Leave a Review

    Leave a Review

    Compare listings

    Сравняване
    Olx Недвижими Имоти
    • Olx Недвижими Имоти