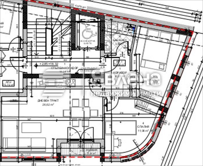
Явлена-Варна ви представя за продажба тристаен апартамента в нова луксозна тухлена сграда в сърцето на гр. Варна. Жилището е разположено на втори етаж в новострояща се сграда на пешеходно разтояние от входа на морската градина. Състои се от дневен тракт с кухненска част с излаз на тераса, две спални, баня с тоалет и килер. Има възможност за закупуване на гараж или подземно парко място в самата сграда.
Малка жилищна сграда с осем апартамента, разположена на тиха и спокойна улица, само на метри от входа на морската градина. Визията на сградата е съчетание на класическата архитектура, характерна за стара Варна в съчетание със съвременни детайли.
Сградата се намира в идеалния център на Варна. Разположена е на метри от входа на морската градина.
– малка сграда седин вход; – перфектно местоположение; – югозападно изложение;(http://www.yavlena.com/142927)
Compare listings
Сравняване