Открийте мястото, където ще се чувствате у дома от първия момент.
Титан Пропъртис с радост предлага на Вашето внимание тристаен апартамент за продажба в кв. Кайсиева градина, Варна.
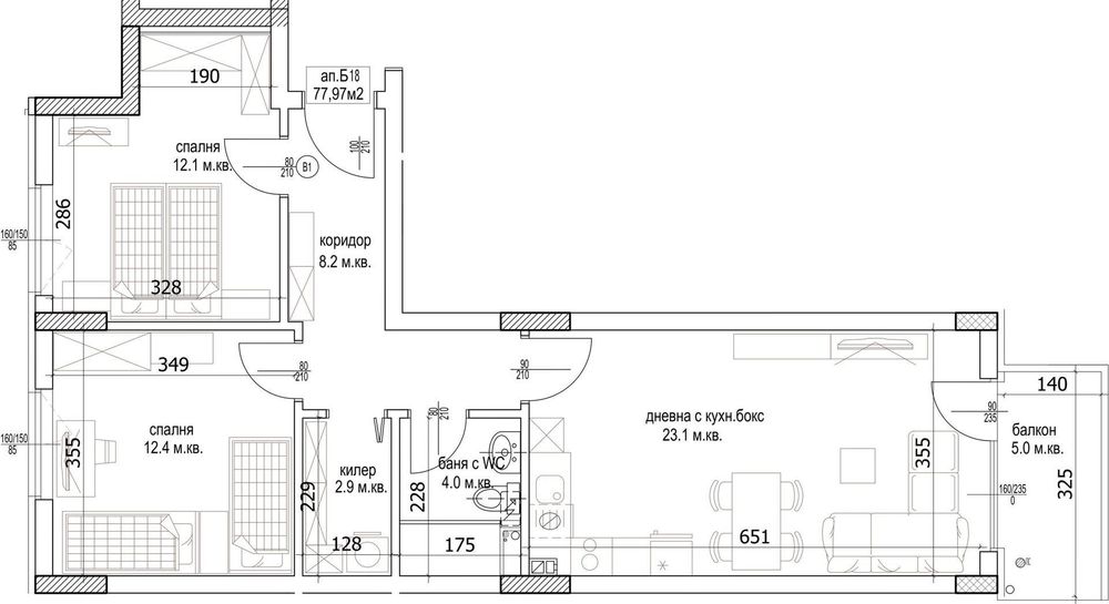
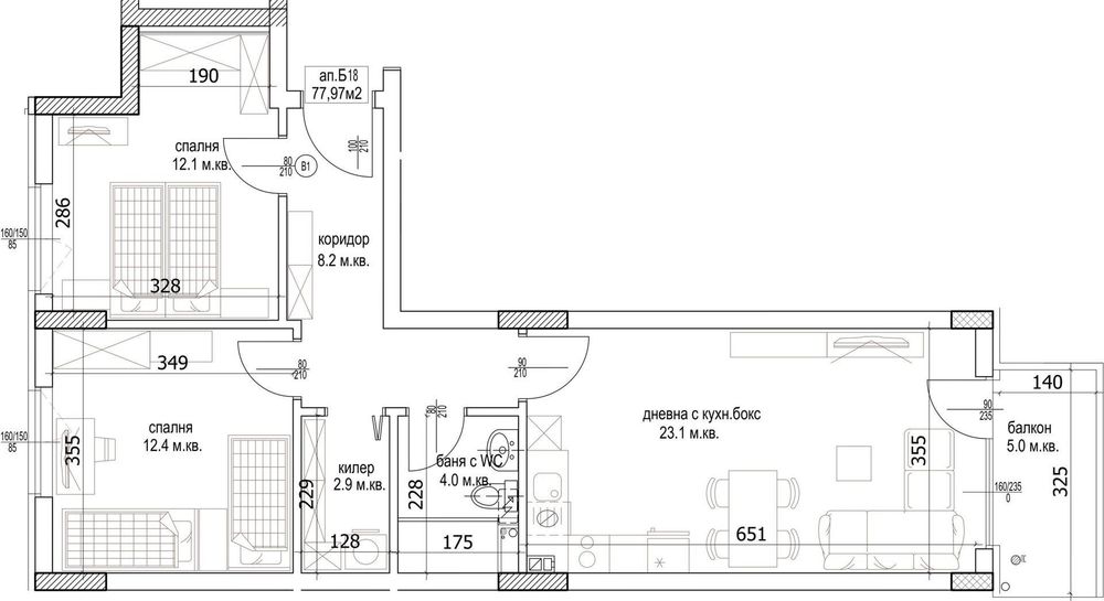
Жилището е с площ 91 кв.м, намира се на 4-ти етаж в девететажна сграда с планирано завършване през 2028 г.
Разпределението включва входно антре, две отделни спални, просторен хол с кухненски бокс, баня с тоалетна, килер и балкон.
Апартаментът съчетава съвременни и качетсвени материали и практично разпределение за комфортен начин на живот.
Изложение: Изток/Запад
Допълнителна информация: Сградата се отличава с елегантен облик и хармонична архитектура, която естествено се вписва в околното пространство. Състои се от 4 входа, разпределени така, че да осигурят удобство и функционалност за живущите. Жилищата в сградата са разнообразни – от уютни апартаменти за млади хора до просторни домове с панорамни тераси, подходящи за семейства. Подземното ниво предлага гаражи и паркоместа, а в зоната около сградата са разположени допълнителни външни паркоместа и зелени площи за отдих. Акцентът е върху големите тераси, връзката с озеленените пространства и комфорта на ежедневието, което прави сградата предпочитан избор за хора, търсещи баланса между градска динамика и спокойствие.
“С нас, вашето търсене на имот завършва с усмивка.”
За оглед на това и други атрактивни предложения, не се колебайте да ни потърсите на посочения телефон или да ни изпратите данните си чрез формата за запитване на сайта.
Реф. номер: 2100153
Compare listings
Сравняване