Тристаен апартамент в сграда ново строителство на етап след Акт 14.
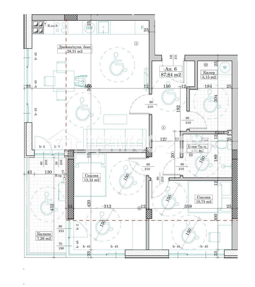
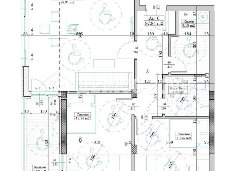
Апартаментът се намира етаж 2 и се състои от дневен тракт с площ от 28м2, спалня 13,14м2, спалня – 10,75м2, баня с WC – 3м2, дрешник – 5,15м2, коридор = 4м2, тераса 7м2,
апартамент №6
Примерна схема на разсрочено плащане:
60% – на предварителен договор
30% – при завършване на външната фасада на сградата
10% – Акт 115
Срок на издаване – 12.2026г.
Избор на двустайни и тристайни апартаменти.
Открити паркоместа – цена при запитване!
Compare listings
Сравняване