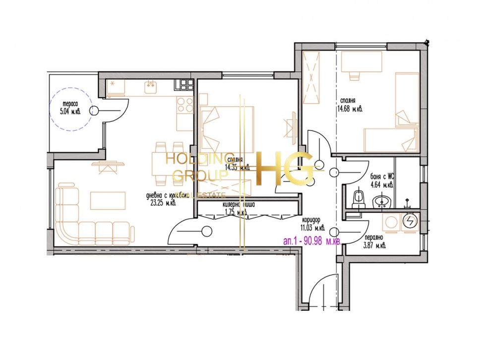
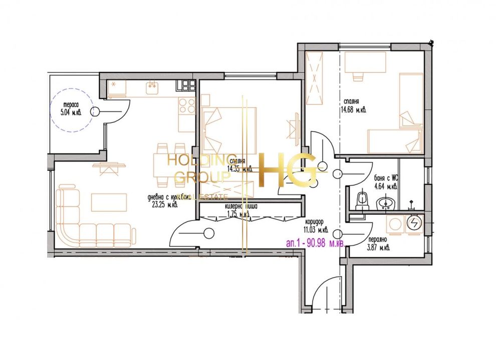
Holding Group Real Estate предлага на вашето внимание апартамент на първи етаж в новострояща се сграда в м-т Траката. Апартамента разполага с две спални, дневна с кухненски бокс, баня с тоалет, перално помещение и тераса. Красива морска панорама. Сградата се строи с внимателно подбрани строителни материали. Възможност за закупуване на гараж или външно паркомясто. Намира се в близост до частно училище и детска градина, в тих и спокоен район. На 10 мин. пеша от автобусна спирка. Гъвкава схема за плащане.
Ако желаете да закупите Вашият бъдещ дом с банково финансиране на най-добри условия, може да разчитате на нас за пълно съдействие и организация през целия процес.
Ние ще бъдем до Вас през цялото време и до самото финализиране на сделката.
код на обява:3640
Compare listings
Сравняване