HOLDING GROUP real estate представя на Вашето внимание чудесен тристаен апартамент.
Апартаментът се намира в бутикова сграда в един от предпочитаните райони на гр. Варна м-т Долна Тракана на
пешеходно разстояие от хранителен магазин, спирки на градски, заведение за бързо хранене, аптека, easypay, ресторанти.
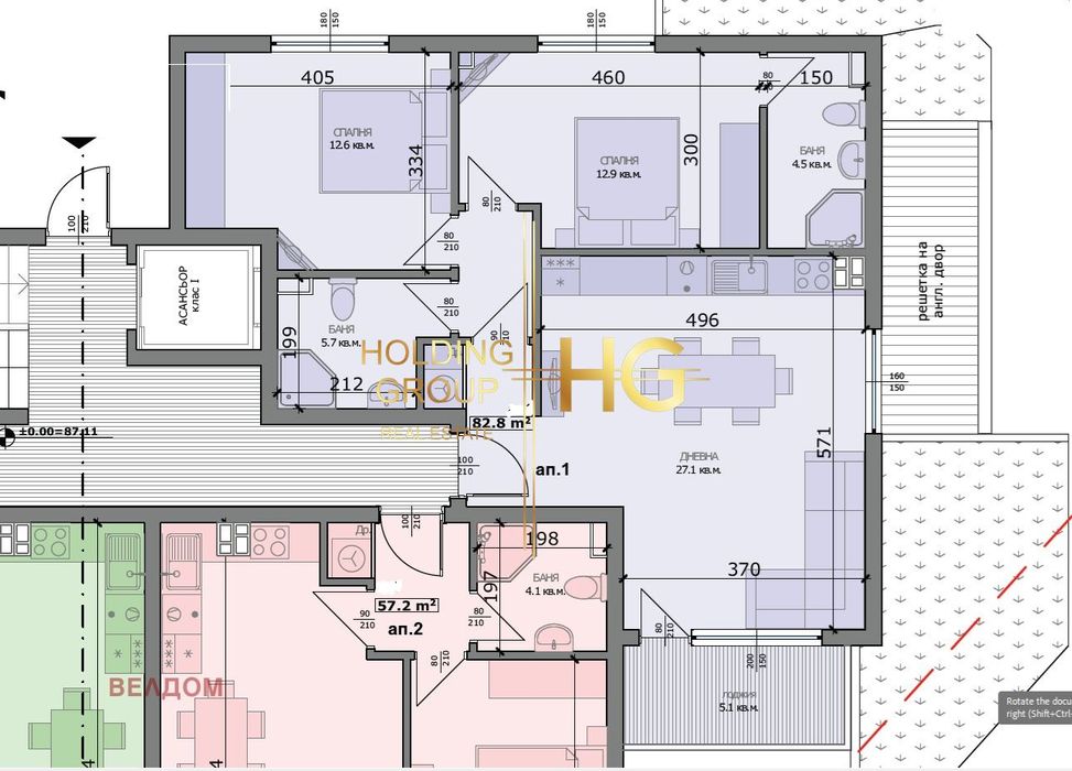
Функционално разпределение!
Апартаментът се състой от голям дневен тракт с кухненски бокс, две спални, две бани с тоялетна, балкон с гледка.
Сградата е отлична.
Дограма Рехау,
Перфектни общи части.
Възможност за покупка на паркомясто.
Ако желаете да закупите вашият бъдещ дом с ипотечен кредит,
ние ще съдействаме по целия процес, до самото финализиране на сделката!
Код на обявата: 6788
Compare listings
Сравняване