Холдинг груп недвижими имоти представя :
Нов жилищен проект в ж.к. Младост.
Строителството вече стартира и се очаква да завърши в края на 2027г.
Страхотна възможност за инвестиция на ниски цени !!!
Доверен строител с дългогодишен опит в бранша.Качествено и луксозно строителство !!!
За сградата:
Сградата се отличава със своите съвременни архитектурни линии и функционален дизайн, насочени към високия стандарт на живот. Сградата предлага жилища с различна квадратура и изложения, които осигуряват оптимална слънчева светлина и комфорт. Проектът е монолитен и е създаден с устойчиви на времето материали, които гарантират дългосрочна безопасност и ефективност при експлоатация.
Комплексът е иновативен проект, който комбинира модерна архитектура и функционалност, за да създаде уютни и просторни жилищни пространства. Разполага с 11 етажа, от които 10 са жилищни и 1 подземен етаж, предназначен за паркоместа и складови площи.
Предлагат се разнообразие от апартаменти, съобразени с нуждите на различни типове домакинства. Проектирани с внимание към детайлите, жилищата в сградата осигуряват комфорт и функционалност, с оптимални разпределения и гледки към различни посоки.
Двустайните апартаменти, с изложения на изток и запад, предлагат просторни дневни зони с много естествена светлина и удобно разпределение на помещенията. Те са перфектни за малки семейства или хора, които търсят уютно жилище с модерен стил.
Тристайните апартаменти, с южно и източно изложение, предоставят достатъчно пространство за семейства с повече членове, с добре планирани зони за почивка и ежедневие. Те се отличават с функционалност и съвременен дизайн, който отговаря на нуждите на съвременния градски живот.
Четиристайните апартаменти са просторни и предлагат изложения в различни посоки, което гарантира слънчева светлина през целия ден и прекрасни панорамни гледки. Те са идеални за големи семейства или за тези, които търсят повече пространство и комфорт в дома си.
Всеки апартамент е проектиран с акцент върху модерния начин на живот, с функционални разпределения, осигуряващи удобство и уют. Освен това, сградата предлага висок стандарт на строителство и съвременни удобства, които отговарят на нуждите на взискателните купувачи.
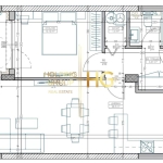
За апартамента:
Разположен е на 5ти жилищен етаж с площ от 112.56кв.м. разпределени по следният начин:
входно антре 8.21 кв.м.
баня с WC 3.23кв.м
баня с WC 3.27кв.м
килер 2.37кв.м.
спалня 13.77кв.м
спалня 11.89кв.м
всекидневна с кухненска част 28.55кв.м.
балкон 2.96кв.м.
балкон 3.9кв.м.
Изложение : Югоизток
Схеми на плащане:
При предварителен договор: 20%
При достигане на кота „0“: 20%
При достигане на кота „8.40“: 20%
При издаване на Акт 14: 20%
При поставяне на дограма: 10%
При издаване на Акт 16: 10%
ЛОКАЦИЯ :
Сградата се намира на стратегическо местоположение в близост до бул. Ян Хунияди и магазин „Мадара“. Тази локация предлага удобен достъп до основни градски артерии, търговски обекти и обществени услуги. Благодарение на отличното си местоположение, проектът е идеален за хора с активен начин на живот, които търсят баланс между динамиката на града и комфорта на спокойна жилищна среда.
За повече информация и огледи обадете се и цитирайте код на обявата.
Ако желаете да закупите вашето ново жилище чрез банков кредит , можем да ви съдействаме. Партнираме си успешно с всички банкови институции в страната.
Обадете се сега и заявете своята безплатна консултация.
код на обява : 5777
Compare listings
Сравняване