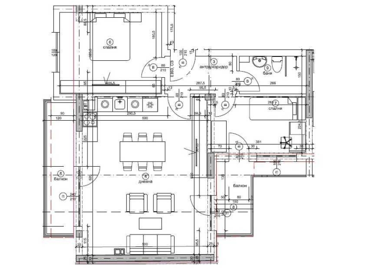
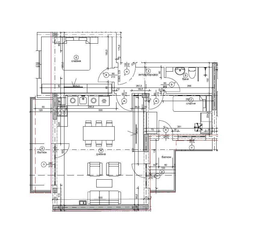
Агенция BiB Group продава тристаен апартамент във Варна, ОКРБ. Площта на имота е 102 кв.м. на среден етаж и има следното разпределение:
— входно антре, голяма дневна с кухня и трапезария – 32 кв.м., две спални, баня с тоалет, две тераси.
Апартамента се продава с маза.
На разположение са също, гаражи и паркоместа.
Жилището се намира на пети, среден етаж.
Продава се в степен на завършеност БДС, с възможност за промени в етап на строеж.
Предимства на нашето предложение:
• подходящ за кредитиране;
• големи стаи;
• топ център;
• възможност да завършите жилището си по собствените си желания;
• ново строителство;
• локация;
• удобни схеми на плащане.
ОКРБ, Варна, продажба на тристаен апартамент в строеж от агенция BiB Group. Топ център, близо до училища, магазини, морската градина, университети. Подходящ за инвестиция.
Код: 19220
Compare listings
Сравняване