Продава се Тристаен апартамент в Варна, Погреби – 83 кв.м за 1687 €/кв.м

  • 140,000€
  • 1,687€/m²
Област Варна, гр. Варна, Погреби
  • Апартамент
  • Тип на имота
  • 83
  • кв.м
  • 2024
  • Година на строителство
За продажба Агенция
Област Варна, гр. Варна, Погреби
  • 140,000€
  • 1,687€/m²

Накратко за имота

  • Апартамент
  • Тип на имота
  • 83
  • кв.м
  • 2024
  • Година на строителство

Описание

САМО ОТ НОВ ДОМ 1! ЮГ – ЮГ – ИЗТОК! Готова Сграда ! Ключ в офиса !

Детайлна информация на : www.novdom1.bg – Реф. №: 73586

Консултант Недвижими Имоти – Силвия Георгиева – 08******80

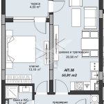
Имотът Представлява : Входно Антре; Дневен тракт с кухненска част в него, място за хранене, зона за релакс и излаз на голяма тераса; Родителска спалня 13 м2 с излаз на същата тераса. Втора спалня около 12 м2Баня и Тоалетна в едно. Килер / мокро помещение.

Състояние : Имотът се издава по “БДС” – Екстериорна блиндирана врата. Под : нивелирана замазка подготвена за полагане на гранитогрес, паркет или настилка по Ваш избор. Стени : машинно обработена гипсова мазилка с турбозол подготвена за боя или тапет по ваш избор. Мокри Помещения : ръчно обработена циментова мазилка подготвена за полагане на фаянс и теракота .ВиК инсталация „на тапа“. ЕЛ инсталация : контакти, ключ и фасонки.

Строителство : Висококачествено „Ново Строителство“ – стоманобетонна конструкция посрещащи всички норми за сеизмичност съгласно „БДС“. Монолитна зидария изпълнена с най-висок клас материали. Висок клас ПВЦ 5-камерна дограма с 65мм профил и 24мм всесезонен стъклопакет. Топлоизолационна система “BAUMIT”ESP-60mm. Силикат-силиконова фасадна мазилка на фирмата “BAUMIT” с висока паропропускливост и самопочистващ се ефект.

Отлична Локация : Имота се намира в един от най-предпочитаните за живеене и инвестиция райони на град Варна. Лесен и бърз достъп до главни пътни артерии, административни учреждения, банки, училища, детски градини, автобусни спирки, детски площадки, аптеки, търговски центрове, супермаркети, козметични студия, заведения и туристически атракции.

Сградата : Луксозно завършени общи части на Испанси гранитогрес, парапети от инокс, хидравличен асансьор с „долно“ машинно, гарантиращ безшумната работа на съоръжението. Облицовка на фасадата . Домофона система за контролиран достъп в сградата.

Забележка : Горепосочените са предоставени и одобрени от собственика и са публикувани с неговото съгласие ! Имотът се издава пригоден за живеене и е със статут на апартамент, което го прави идеален за кредитиране!

„НОВ ДОМ 1“ : Компанията разполага с : „Юридически Отдел“- извършващ всички необходими юридически и технически проверки на имота, организира всички етапи на сделката до нейното финализиране с нотариално прехвърляне на имота. „Кредитен Отдел“ – съдействащ за отпускане на банков кредит при възможно най-добри условия за клиента, като избора на банка се определя спрямо нуждите и възможностите на клиента. „Строително-Ремонтен Отдел“ – гарантиращ при нужда цялостен ремонт на вашето жилище до ключ при най-изгодни условия и цени.

Консултант Недвижими Имоти – Силвия Георгиева – 08******80

Детайли

Обновено на януари 1, 1970 в 12:00 am
  • Цена: 140,000€
  • Квадратура: 83 кв.м
  • Стаи: 3
  • Година на строителство: 2024
  • Тип на имота: Апартамент
  • Операция: За продажба

Допълнителни детайли

  • Строителство: Тухла
  • Етаж: 7-ми
  • Брой етажи на сградата: 8
  • Отопление: Електричество
  • Обзавеждане: Необзаведен
  • Състояние на сградата: Завършена
  • Преход: С преход

Особености

  • Град Варна
  • Област Област Варна
  • Квартал Погреби
  • Държава България

0 Отзив

Sort by:
Leave a Review

    Leave a Review

    Compare listings

    Сравняване
    Olx Недвижими Имоти
    • Olx Недвижими Имоти